
Durante os últimos três séculos, os museus, como tipologia da arquitetura, passaram de um importante nó na cidade para um ícone no qual uma cultura se identifica, se transformando num marco na escala cidadã e internacional.
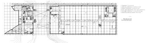
Destacamos neste mês o Museu Nacional da Estônia, que propõe uma estratégia que vai além da reunião e exposição de elementos, mas traz consigo um reconhecimento cultural, histórico e territorial. Implantado como uma prolongação das ruínas de um antigo campo aeronáutico usado pela ocupação soviética, este projeto contrasta seu contexto histórico com um novo edifício que se eleva como projeção para uma nova realidade e futuro nacional.
Museu Nacional da Estônia / DGT Architects














































