
- Área: 1502 m²
- Ano: 2013
-
Fotografias:Cristobal Palma / Estudio Palma
-
Fabricantes: Atika, Budnik, Duomo, Duromarmol, Kone, Minassian, Superval

Hotel Ismael 312
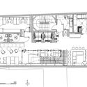
O Hotel Ismael é um pequeno hotel que se faz grande diante de seu entorno. Seu terreno tem apenas 180 m² (com dimensões de 9 por 20 metros) e faz frente a duas ruas: Ismael Valdez Vergara e Monjitas.
Contexto
A quadra é composta de edifícios de 9 pavimentos de altura de fachada contínua, que refletem diferentes estilos arquitetônicos de diversas épocas, sendo assim uma amostra cultural em perfeitas condições de nosso patrimônio arquitetônico.

No local do projeto, existia um edifício de três pavimentos, declarado como "imóvel discordante e de escasso valor arquitetônico" pelo conselho de monumentos nacionais, o que permitiu pensar em um projeto completamente novo, com uma proposta atual.
O projeto
Este é um edifício na cidade para a cidade, uma vez que nos questionamos sobre qual seria a melhor forma de inserir um projeto atual em uma quadra consolidada. Entendemos que nossa intervenção era como "uma pincelada sobre um quadro existente", que podia ser um acerto ou um erro completo.

O projeto, porém, não corresponde a nenhuma das épocas anteriores, mas ao presente, por acreditarmos que ele não deveria camuflar-se tentando parecer ou adotando algum estilo arquitetônico pré-existente, mas deveria propor uma linguagem que reflete uma arquitetura atual, dialogando com seu entorno a partir dos elementos predominantes, os cheios e vazios, as cores e texturas.

A composição arquitetônica da quadra contempla três ordens principais
A. Embasamento
B. Corpo
C. Remate
A partir do ponto de vista de linguagem arquitetônica, as edificações da quadra se caracterizam em cada caso pelas varandas, como elementos anexos aos edifícios, mas que, com suas balaustradas, geometrias e detalhes, definem um estilo e sua expressão, seja de um período moderno, barroco ou clássico.

Desta forma, o projeto recorre a um embasamento transparente que faz com que o edifício pareça flutuar sobre o solo, vinculando visual e funcionalmente as ruas. Assim, optou-se por romper a hermeticidade da quadra entre o parque e a cidade, e o edifício tem acesso por ambos os lados. O desenho do corpo médio que contem os dormitórios, propõe varandas em cada ambiente, que como no resto da quadra, pousam como um elemento expressivo e volumétrico, não só como anexo, mas como parte da edificação. Dessa forma, dobra-se os muros da fachada, gerando e contendo as varandas, e produzindo ao interior uma janela lateral que aumenta a luminosidade dentro dos quartos. O remate do edifício, novamente, é um vazio que resolve programaticamente um terraço com piscina.




















