Condomínio Baleia / Studio Arthur Casas

Condomínio Baleia / Studio Arthur Casas - Imagem 2 de 37Condomínio Baleia / Studio Arthur Casas - Imagem 3 de 37Condomínio Baleia / Studio Arthur Casas - Imagem 4 de 37Condomínio Baleia / Studio Arthur Casas - Imagem 5 de 37Condomínio Baleia / Studio Arthur Casas - Mais Imagens+ 32

Praia da Baleia, Brasil
  • Arquitetos: Studio Arthur Casas; Studio Arthur Casas
  • Área Área deste projeto de arquitetura Área:  2340
  • Ano Ano de conclusão deste projeto de arquitetura Ano:  2012
  • Fabricantes Marcas com produtos usados neste projeto de arquitetura
    Fabricantes:  By Kamy, Lumini, Nina Martinelli, Palimanan, Pantanal, Parque SP, Snaldi, kitchens
  • Construtora: GD8 ENGENHARIA
  • Consultores: Grau Engenharia (Instalações); Gil Fialho (Paisagismo); Lab Luz (Iluminação); BK Engenharia (Cálculo)
  • Arquiteto Responsável: Arthur Casas
  • Cidade: Praia da Baleia
  • País: Brasil
Mais informaçõesMenos informações
Condomínio Baleia / Studio Arthur Casas - Imagem 23 de 37
© Fernando Guerra | FG+SG

Descrição enviada pela equipe de projeto. O condomínio está situado entre uma grande reserva de Mata Atlântica na Serra do Mar e a preservada praia da Baleia. São casas de final de semana, com uma planta que estimula a interação entre os espaços, que se desenvolvem em diagonais.

Para assegurar a privacidade de cada uma das quatro casas, elas foram ligeiramente desalinhadas no terreno. Apesar da proximidade, jardins verticais foram empregados nos muros cegos dos vizinhos, atenuando o efeito de barreira visual nas laterais. Grandes portas de vidro deslizam completamente para fora da casa, apagando as fronteiras entre interior e paisagem.

Condomínio Baleia / Studio Arthur Casas - Imagem 31 de 37
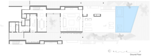
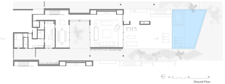
Planta Térreo

Condomínio Baleia / Studio Arthur Casas - Imagem 33 de 37Condomínio Baleia / Studio Arthur Casas - Imagem 34 de 37Condomínio Baleia / Studio Arthur Casas - Imagem 36 de 37Condomínio Baleia / Studio Arthur Casas - Imagem 30 de 37Condomínio Baleia / Studio Arthur Casas - Mais Imagens+ 32

Em cada terraço existe uma piscina com hidromassagem e sob ela uma sauna. Um espaço para churrasco foi posto ao lado do terraço, contínuo à sala de estar.

As escadas são banhadas com luz natural em todos os três andares, a divisória em vidro com os corredores acentuando o efeito. No primeiro andar, anfitriões e convidados são separados por uma passagem contígua ao pátio, a suíte máster aberta para generosa vista do mar. Todos os banheiros possuem aberturas zenitais. No segundo andar estão localizados o home theater e um deck acima da suíte máster.

Condomínio Baleia / Studio Arthur Casas - Imagem 25 de 37
© Fernando Guerra | FG+SG

O corte da casa estimula a ventilação cruzada, evitando a utilização de ar condicionado durante o verão. Os materiais trazem a sensação de conforto e aquecem os espaços, como o emprego de tijolos nas fachadas, fibras naturais nos tapetes e o piso em madeira dos andares superiores.

Condomínio Baleia / Studio Arthur Casas - Imagem 26 de 37
© Fernando Guerra | FG+SG

O Studio também realizou o design de interiores de uma das casas. O mobiliário é composto principalmente por peças brasileiras, como a poltrona Mole de Sérgio Rodrigos. É de nossa autoria a mesa e o banco da sala de estar. O cliente é colecionador de arte e possui fotos de Leonardo Kossoy, pintura de Christian Lemmerz e peças de artesanato brasileiro.

Condomínio Baleia / Studio Arthur Casas - Imagem 28 de 37
© Fernando Guerra | FG+SG

O paisagismo utilizou plantas locais que protegem da vista dos vizinhos e acentuam o aspecto intocado desta praia remota.

Condomínio Baleia / Studio Arthur Casas - Imagem 27 de 37
© Fernando Guerra | FG+SG

Galeria do Projeto

Ver tudoMostrar menos
Sobre este escritório
Cita: "Condomínio Baleia / Studio Arthur Casas" [Four Houses in Baleia Beach / Studio Arthur Casas] 01 Set 2014. ArchDaily Brasil. Acessado . <https://www.archdaily.com.br/br/626226/condominio-baleia-studio-arthur-casas> ISSN 0719-8906

¡Você seguiu sua primeira conta!

Você sabia?

Agora você receberá atualizações das contas que você segue! Siga seus autores, escritórios, usuários favoritos e personalize seu stream.