
-
Arquitetos: PROMONTORIO
- Área: 1750 m²
- Ano: 2016
-
Fotografias:Fernando Guerra | FG+SG
-
Fabricantes: Lindo Serviço, Modulyss, Mota Engil, Otis, Saint-Gobain, Tecniclima

Descrição enviada pela equipe de projeto. GS1 Portugal é a uma associação nacional sem fins lucrativos, representante do organismo global responsável pela implementação do sistema de standards mais utilizado no mundo para identificação, captura e partilha, sendo o standard mais conhecido o código de barras.

A obra da sua nova sede resulta de um concurso de arquitectura realizado em 2014, cujo 1º lugar foi atribuído ao atelier de arquitectura PROMONTORIO, em colaboração com o artista plástico Alexandre Farto aka VHILS. O edifício está localizado no Campus do Lumiar do IAPMEI (Agência para a Competitividade e Inovação), em Lisboa. Este polo tecnológico, que é um dos primeiros especificamente criados para a inovação empresarial, está implantado nos terrenos circundantes de uma antiga quinta, nos limites da cidade e foi planeado no início dos anos 70 com base numa malha ortogonal de inspiração no modelo universitário anglo-saxónico.


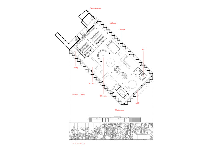
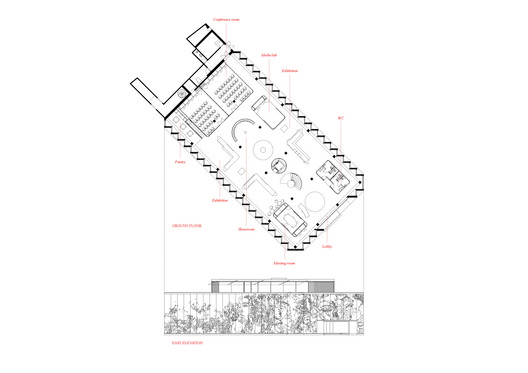
O novo edifício parte da adaptação e remodelação de uma estrutura de betão existente, entretanto física e tecnologicamente obsoleta. O edifício, designado K3, teve assim como ponto de partida a pré-existência de um volume rectangular com dois pisos, numa malha estrutural de pilares e lajes de betão, estas últimas fungiformes, também vulgarmente referidas como “lajes de cocos”. Em termos de programa, o edifício tem 3 áreas distintas a que correspondem também os diferentes pisos. O piso térreo integra o Centro de Inovação e Competitividade, um espaço que pretende demonstrar a utilização dos Standards GS1 ao longo de toda a cadeia de valor, através de módulos expositivos, interativos, aberto à esfera pública; inclui ainda um auditório polivalente e áreas técnicas. O segundo piso agrega a direcção e a equipa da GS1 Portugal dispostos de forma fluída e informal em open space, ficando apenas confinados em ilhas opacas as salas de reunião, economato, IS, etc. Finalmente, no piso da cobertura localiza-se a zona social com bar/cafetaria que se abre para uma área de terraço. Interiormente, o edifício é unificado por dois grandes vazios circulares recortados nas lajes existentes e que permitem ampliar visualmente a experiência do espaço.



Em termos de acabamentos, o interior ilustra intencionalmente a ideia de intervenção numa pré-existência. A simplicidade tectónica dos elementos de betão à vista da estrutura existente, bem como a ausência de tecto falso -deixando por isso exposto todo o sistema de eletricidade e ventilação-, contrasta com o conforto dos materiais e acabamentos na relação táctil do utilizador, como a madeira, a cortiça, os tecidos e as alcatifas.



O sistema da fachada em ziguezague, alternando entre painéis de betão e caixilharias de vidro, de orientação norte-sul, reordena a relação de vistas do edifício com o campus, simultaneamente protegendo os espaços de trabalho da incidência solar excessiva e criando uma relação de transparência privilegiada com o jardim.

No exterior, parte dos painéis de betão pré-fabricado foi objecto de uma intervenção em baixo-relevo de VHILS, e que resulta de uma longa colaboração do artista com os arquitectos noutros trabalhos, além de uma investigação conjunta sobre a própria base tecnológica de moldagem em grande escala. O seu trabalho, e esta intervenção em particular, propõe uma reflexão crítica contemporânea sobre o caos da informação e do ruído visual, questionando o seu papel, ao qual se contrapõe a presença de um olhar humano.




























