
Por Nara Grossi
Em 1983, o proprietário da livraria Van Damme, de Belo Horizonte, contratou Serpa para o projeto de sua residência. A casa, localizada no bairro das Mangabeiras, foi uma das primeiras da rua, em lote que, na época, não tinha vizinhos construídos.
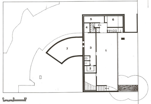
O terreno está localizado aos pés da Serra do Curral [1]: referência geográfica direcionadora do partido arquitetônico. Assim como na maioria de suas propostas, Serpa contou com as divisas como elemento estruturador do projeto: a casa foi implantada junto a uma das divisas laterais e à divisa de fundos, com volumetria curva que liberou parte do lote na busca por estabelecer um diálogo com a Serra.
Serpa se apropriou do desnível do terreno para construir uma nova topografia: criou um plano intermediário a partir da cota mais alta do alinhamento da rua, que funcionou como o organizador dos fluxos, da distribuição dos pavimentos e das relações criadas entre exterior e interior. Esse plano configurou o pátio de lazer da casa, construindo um vazio frontal que recebeu o centro irradiador da curva definidora de parte da cobertura.

A solução da cobertura, em estrutura independente de concreto aparente, é a marca forte na apreensão do edifício. É ela quem estabelece o limite de projeção, sobrepondo-se, em curva, aos volumes inferiores, que por sua vez, escapam de sua marcação totalizadora, expandindo as possibilidades de ocupação do espaço.

A independência do traçado curvo é simulada através da criação de um pergolado que solta a cobertura do canto do lote; sob sua projeção foi criado um jardim. Com isso, a iluminação natural participa do interior da casa, que associado ao jardim interno, cria uma ambiência especial ao estar, fortalecendo as relações e interdependências espaciais da residência.

A luz natural, em suas variações ao longo do dia, permeia o pergolado, trazendo movimento ao espaço estático. A partir da área social ela atinge os demais ambientes, direciona o caminho a ser percorrido com mais ou menos intensidade, proporcionando distintas experimentações entre claro e escuro, reinventando as sensações do usuário. É ela a protagonista da percepção espacial.

No interior da residência foram criadas novas topografias, com pavimentos acessados por meios níveis, no intuito de enriquecer a trajetória e dramatizar o percurso. A casa se abre em curva ao visitante, em espaço fluido que não se revela de imediato, mas que se insinua, principalmente pela participação da luz. A área íntima, integrada à área social através de circulação em mezanino, também desfruta da iluminação natural e da vista para a Serra do Curral.

O arquiteto retomou pontos utilizados em vários de seus trabalhos: a cobertura como elemento organizador do espaço e definidor do partido de projeto; apropriação das divisas como forma de tensão do objeto arquitetônico; modulação estrutural; a luz natural como elemento transformador do espaço vivenciado; uso de pergolados e de jardins internos; a rigidez da setorização espacial; o setor de serviços posicionado na parte frontal do lote.

O uso de geometrias estruturou o projeto e abriu possibilidades para um conjunto de estratégias determinantes na percepção do espaço vivenciado. O plano do embasamento organizou a planimetria enquanto a cobertura organizou a volumetria e a proporção do objeto. Elementos que variavam entre cheios e vazios, opacidade e transparência, construíram o objeto a partir dessa sucessão de sobreposições. A definição do edifício se deu pela confluência dessas escolhas e direções.

Serpa entrou em processo de reelaboração formal e conceitual, atingindo maior complexidade na compreensão e investigação do objeto arquitetônico. A geometrização deixou de ser trabalhada como malha reticulada, e passou a funcionar como elemento de tensão e distensão espacial, fruto da evolução de uma trajetória que vai se tornando mais clara, à medida que se familiariza com sua produção.
A residência Van Damme representa a síntese dos projetos do arquiteto, projetada quando Serpa estava com quarenta anos. Afirma pontos abordados por ele ao longo de sua trajetória, ao mesmo tempo em que reinterpreta as possibilidades e intenções do arquiteto a partir de um novo momento de discussão da arquitetura brasileira.
NOTAS:
[1] A Serra do Curral foi escolhida como símbolo de Belo Horizonte, em 1995. Delimita a cidade a leste e faz parte da área de preservação ambiental do Parque das Mangabeiras.
Nara Grossi é arquiteta graduada pela UFMG e mestre pela FAUUSP. É sócia diretora da Gema Arquitetura, com escritórios em Belo Horizonte e São Paulo.



















