
-
Arquitetos: Biazus Arquitetura
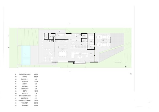
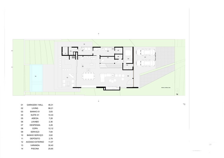
- Área: 490 m²
- Ano: 2025
-
Fotografias:Cristiano Bauce
-
Fabricantes: Irmãos Shwanck

Descrição enviada pela equipe de projeto. A leveza da estrutura metálica e o aconchego da madeira natural são os elementos mais marcantes desse projeto. Localizada na região metropolitana de Porto Alegre em um condomínio náutico com canais navegáveis onde a vida desacelera do ritmo frenético da cidade.





















