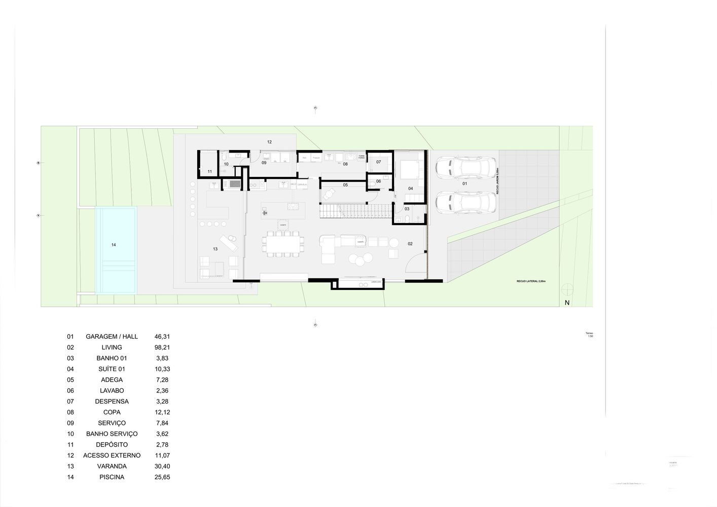
Casa Floresta / Biazus Arquitetura
Ampliar imagem
|
Tamanho original
Compartilhar
Compartilhar
Compartilhar esta imagem
Facebook
Twitter
Mail
Pinterest
Ou
Copiar URL
✕
✕