
-
Arquitetos: FELT architecture & design
- Área: 345 m²
- Ano: 2022
-
Fotografias:Stijn Bollaert
-
Fabricantes: AGROB BUCHTAL, Eternit, Fermacell, Firmax, Sapa Building System International NV, Sicis, Wienerberger

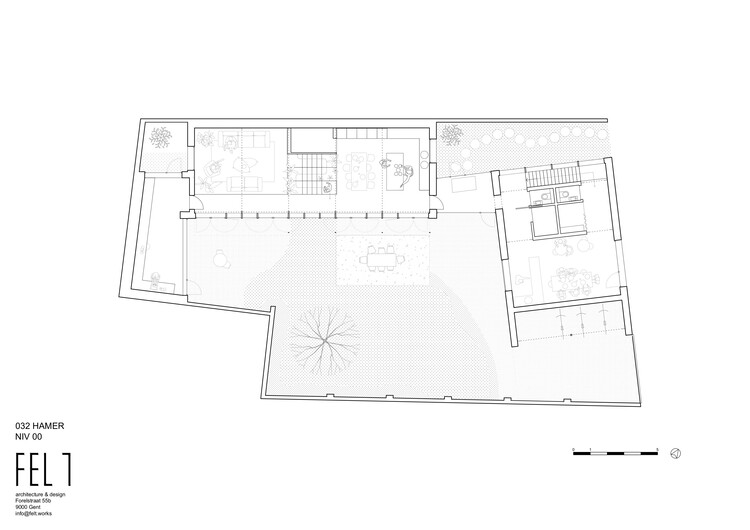
Descrição enviada pela equipe de projeto. Em um distrito densamente populado, um estreito beco leva a um terreno de contornos irregulares no coração do quarteirão da cidade. Antigamente ocupado por treze boxes de garagem sem graça, esse espaço passou por uma metamorfose transformadora, dando origem a um conjunto contemporâneo - uma residência unifamiliar harmoniosamente integrada a um estúdio de ioga e a um café acolhedor.

Elaborada com visão criteriosa, a composição arquitetônica posiciona elegantemente dois volumes distintos ao longo da periferia do lote, maximizando habilidosamente a utilização das altas paredes de divisão preexistentes. Delicadas extensões de vidro interligam esses volumes, envolvendo um jardim urbano verdejante situado no núcleo do terreno.

Essa configuração espacial capitaliza a orientação do lote, emoldurando estrategicamente vistas cativantes enquanto garante privacidade. Olhares fascinantes do jardim convidam do beco, enquanto entradas discretas delimitam os domínios do estúdio e da residência, preservando a unidade holística da estrutura.


Tanto os volumes residenciais quanto os do estúdio possuem dois níveis de ocupação. Notavelmente, o segmento que abriga o café e o santuário de ioga desfruta de acesso direto à rua, servindo como um amortecedor entre a moradia e seu santuário privado. Janelas expansivas oferecem panoramas inesperados, fomentando uma relação simbiótica com o bairro circundante.

A residência privada se funde perfeitamente com o jardim, graças a uma vasta fachada de vidro voltada para o sul, dissolvendo as fronteiras entre o interior e o exterior. Uma escada em cascata, aninhada em um vazio arejado, serve como um elo entre os andares, definindo sutilmente os espaços de estar. Com aberturas quadradas, as fachadas laterais emolduram vislumbres de pátios verdejantes, infundindo o interior com uma sensação de tranquilidade exuberante.


Utilizando componentes de madeira pré-fabricados, a estrutura exala um charme robusto, com tetos de madeira e pisos de terracota conferindo uma atmosfera acolhedora. Externamente, a fachada de tijolos bege lascados imbuí os volumes principais com uma atração monolítica, fundindo-se perfeitamente com a tapeçaria arquitetônica circundante.
























