
-
Arquitetos: atelier huu
- Área: 110 m²
- Ano: 2023
-
Fotografias:Hiroyuki Oki

Descrição enviada pela equipe de projeto. Após a pandemia de Covid-19 em Ho Chi Minh City, o proprietário desta casa expressou o desejo de retornar à sua cidade natal e construir uma moradia que servisse como ponto de encontro para familiares e amigos — um refúgio que simbolizasse o retorno às origens, depois de mais de vinte anos vivendo e trabalhando longe, na cidade.

Localizada em uma vila rural de Binh Tuyen, a casa se insere em uma paisagem agrícola que ainda preserva as características tradicionais do campo do norte do Vietnã. O projeto encontra-se nas proximidades de um antigo forno de tijolos e, inspirado pelo desejo do proprietário de uma morada tradicional integrada à natureza, adota como materiais principais as telhas cerâmicas e os tijolos vermelhos, que reforçam a conexão entre arquitetura, memória e território.

Árvores maduras, plantadas pelo proprietário há mais de duas décadas, foram cuidadosamente preservadas e se tornaram o principal elemento orientador do partido arquitetônico. Os hábitos cotidianos — como as conversas sob a varanda, a presença das árvores e da água, os jardins e o aroma da comida preparada em fogão a lenha — expressam a essência da vida rural e permanecem visíveis na arquitetura tradicional. Contudo, esses traços de simplicidade e convivência vêm desaparecendo gradualmente diante do avanço rápido e desordenado da urbanização e da adoção de novos modelos habitacionais.



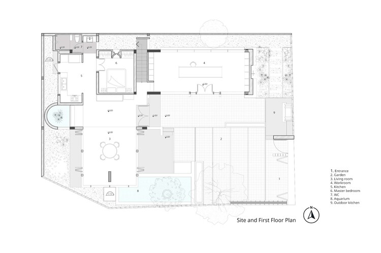
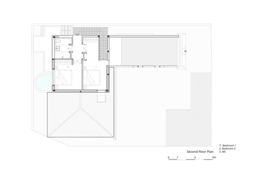
A vida rural favorece naturalmente um modo de viver que conecta diferentes gerações — os mais idosos e os mais jovens. Por isso, o projeto concentra-se em criar um amplo espaço de convivência no térreo, que abriga sala de estar, área de trabalho, um dormitório, cozinhas interna e externa, jardins e um lago para criação de peixes, promovendo a integração entre natureza, cotidiano e família.


A disposição espacial foi concebida para promover uma atmosfera acolhedora, propícia a refeições e encontros familiares, com um espaço de trabalho amplo e bem iluminado, além de quartos minimalistas que preservam o conforto essencial da vida cotidiana. O projeto rejeita a lógica comum de que “maior é melhor”, evitando a criação de áreas excessivas e subutilizadas que acabam servindo apenas como depósitos. Em vez disso, valoriza o uso de materiais locais, o trabalho artesanal e elementos rurais familiares, evocando um profundo senso de intimidade, identidade e pertencimento ao lugar.



Em uma era em que as fronteiras entre o urbano e o rural se tornam cada vez mais difusas — em que jardins exuberantes são substituídos por pátios pavimentados e novas casas “sem identidade” carecem de vínculos culturais —, a Casa TUPHUONG surge como um lembrete delicado: um convite à preservação e à revalorização da beleza silenciosa e dos valores atemporais da arquitetura rural tradicional do Vietnã.




















