
-
Arquitetos: Atelier XÜK
- Área: 3840 m²
- Ano: 2024
-
Fotografias:Hao Chen

Descrição enviada pela equipe de projeto. O Centro Esportivo Comunitário Aranya North Shore está localizado em Qinhuangdao, a cerca de três horas de carro de Pequim, na área ribeirinha correspondente à nona fase do projeto Aranya. O terreno, anteriormente uma zona industrial pouco desenvolvida, foi reinterpretado pelos arquitetos com o propósito de criar uma base contextual sólida para o novo edifício. A proposta busca resgatar fragmentos reconhecíveis da memória arquitetônica coletiva, transformando o centro esportivo em um elo entre o passado e a vida contemporânea, além de oferecer à comunidade um espaço público integrado, significativo e enraizado em sua história local.


Guiado por esse conceito, o centro esportivo adota um sistema estrutural em pórtico, comumente presente em antigas zonas industriais ribeirinhas, evocando a memória coletiva das fábricas situadas à beira d’água e reforçando um senso de familiaridade e pertencimento. Localizado na faixa de transição entre a área residencial planejada e o espaço público junto ao rio, o edifício, por meio de sua volumetria e implantação, atua como um elemento de mediação entre as diferentes escalas dos âmbitos público e privado. Além disso, o projeto estimula a convivência e a realização de múltiplas atividades comunitárias, funcionando como um catalisador que aproxima as pessoas de seu entorno e fortalece a relação entre arquitetura e vida cotidiana.



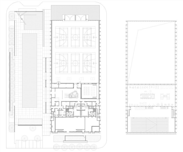
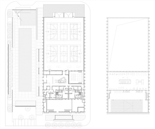
O edifício apresenta-se como um volume retangular monolítico, com dimensões de 78,2 metros de comprimento, 35,5 metros de largura e 12,7 metros de altura. No lado norte, um amplo espaço com pé-direito duplo abriga duas quadras de basquete internas. Já no lado sul, são abrigadas funções diversas: no pavimento térreo localizam-se o hall de entrada, o estúdio de jiu-jitsu, os vestiários e as instalações de tratamento de água, enquanto o nível superior abriga a área fitness e uma piscina coberta. Visto a partir do norte, o centro esportivo se destaca pela ausência de uma fachada tradicional. Em vez disso, uma extensa parede cortina envidraçada expõe o interior, permitindo uma relação visual direta entre o espaço interno e o exterior. Duas grandes portas operáveis, com 18 metros de largura cada, possibilitam o acesso direto às quadras, dispensando a passagem pelo lobby e garantindo flexibilidade no uso do edifício para diferentes tipos de atividades e eventos públicos.



Esse design flexível permite que o centro esportivo se adapte às demandas de diversos tipos e escalas de eventos públicos comunitários. A oeste, uma piscina externa é cercada em três lados por paredes que definem a entrada e modulam as linhas de visão. Um pavilhão com armários atua tanto como cobertura para a entrada quanto como um buffer entre a piscina e o edifício. O hall voltado para o oeste (20 m×9 m), disposto em torno de uma ilha central, é compacto, mas funciona como o principal nó de circulação.


O centro esportivo utiliza um sistema estrutural em pórtico, característico de edifícios industriais, composto por pilares de concreto pré-fabricados e uma cobertura em treliça de aço, que cria um amplo espaço contínuo de grande vão. O mezanino, estruturalmente independente, é inserido dentro desse sistema principal, garantindo flexibilidade e eficiência construtiva. Para atender às diferentes exigências de climatização, as quadras de basquete e badminton, a área fitness e a piscina coberta foram concebidas como zonas climáticas separadas, cada uma com controle ambiental próprio.


As divisórias internas não possuem função estrutural; elas atuam como molduras para a instalação dos painéis de vidro e ocultam tubos de drenagem do telhado. Seu alinhamento preciso com os pilares estruturais da fachada confere ao espaço uma camada adicional de complexidade visual e espacial, enriquecendo a percepção do ambiente interno.


O teto apresenta um layout de iluminação uniforme que organiza visualmente o espaço. Nas quadras de basquete e badminton, o sistema estrutural permanece exposto, enquanto na academia e na piscina coberta optou-se por forros suspensos. O alinhamento preciso entre luminárias e equipamentos cria um plano superior contínuo e coeso, reforçando a clareza e a legibilidade espacial da estrutura.


Quando o portão norte é aberto, o interior das quadras de basquete e badminton se conecta diretamente ao espaço público externo, permitindo fácil acesso e possibilitando a realização de diferentes tipos de eventos temporários. Desde sua inauguração, essas quadras têm recebido uma ampla variedade de atividades comunitárias, consolidando-se como um importante espaço de encontro e convivência para os moradores da região.




























