
-
Arquitetos: Estúdio Chäo
- Área: 41 m²
- Ano: 2023
-
Fotografias:Renato Mangolin, Rodrigo Azevedo

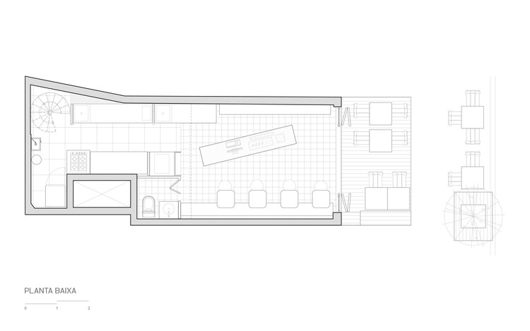
Descrição enviada pela equipe de projeto. O projeto para um novo café em Ipanema RJ chamado SOLO, sigla para Sustentável, Orgânico e Local, partiu de um espaço com um piso de azulejos em tom de barro pré-existente. Após a completa demolição das antigas marcenarias, pensou-se em uma intervenção onde o balcão, com uma posição na diagonal da estreita loja, conseguisse dividir o espaço em duas metades, sendo uma para serviço e outra para a distribuição de mesas ao longo de um banco ao longo da loja.

Logo, o balcão tornou-se o grande elemento da loja, feito artesanalmente através da técnica de taipa de pilão com terra vermelha pilada. O material escolhido para a construção do balcão logo tornou-se um forte elemento da própria marca do café. O destaque inclusive é ressaltado com um ambiente claro e estantes em fina serralheria branca, dando todo destaque ao peso visual provocado pelo barro.


O projeto tem sua força justamente na escolha de materiais de diferentes naturezas. O encontro do balcão de barro pilado feito a mão, em contraponto com a precisão e tecnologia da chapa de aço acabaram traduzindo a ideia da marca, unindo o artesanal e o industrial.










