
-
Arquitetos: atelier SALAD
- Área: 88 m²
- Ano: 2025
-
Fotografias:Kenta Hasegawa

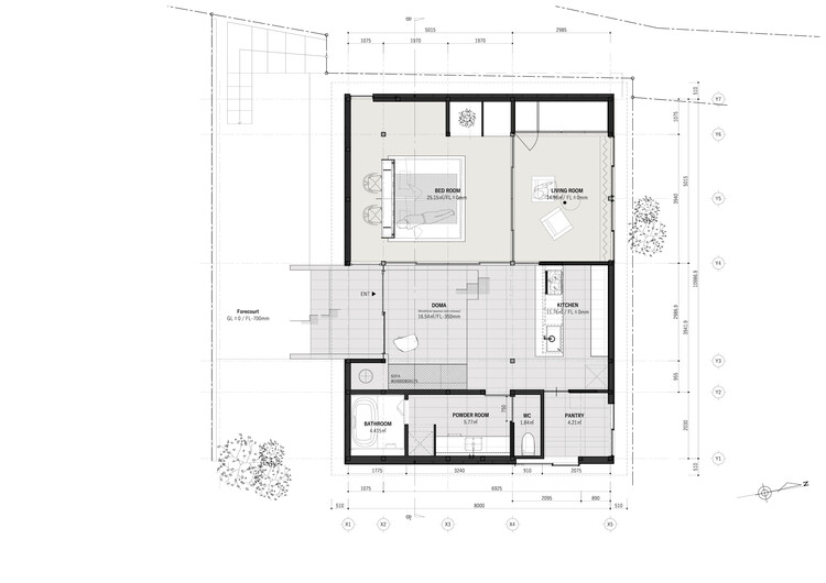
Descrição enviada pela equipe de projeto. Um chef com estrela Michelin mudou-se para uma casa tradicional de madeira, com 90 anos de história, em uma pequena vila de pescadores na cidade de Akune, no sul do Japão. Profundamente inspirados por sua visão de mundo singular, que valoriza os materiais e tradições locais, buscamos expressar, por meio da arquitetura, o mesmo senso de identidade regional e de continuidade cultural.















