
-
Arquitetos: Jan Zaloudek Architekt
- Área: 180 m²
- Ano: 2025
-
Fotografias:BoysPlayNice
-
Fabricantes: Bega, Cappelen Dimyr, Ferm Living, Frama, HAY, Marieli, Marset, NORR11, Schüco, Talka Decor, VitrA

Descrição enviada pela equipe de projeto. Uma casa moderna em um jardim barroco — A Casa Oskar, projetada pelo arquiteto Jan Žaloudek, foi construída em um amplo jardim que originalmente pertencia ao château vizinho, na vila de Kamenná Lhota, no sul da Boêmia. O notável genius loci do local é enriquecido pelos vestígios de um celeiro barroco, árvores centenárias e um muro de pedra que emoldura a extensa propriedade, aberta para a pitoresca paisagem rural.

Contemplação, inspiração, recriação — Construída pelo arquiteto para ele próprio e sua família, a Casa Oskar incorpora uma filosofia centrada na contemplação, na inspiração e no descanso. Ao lado de sua esposa, a historiadora de arte e escritora Jolanta Trojak, Žaloudek há muito sonhava com um lugar onde fosse possível tanto se conectar com a paisagem quanto recolher-se para restaurar forças físicas e mentais. Eles imaginaram um espaço que não apenas convidasse ao descanso, mas também fosse uma fonte constante de criatividade e inspiração — qualidades essenciais à vida cotidiana da família. Com atenção meticulosa aos detalhes, criaram um ambiente em que até as rotinas mais simples se transformam em experiências profundas. A Casa Oskar é um microcosmo harmonioso para dormir, ler, comer e criar, sempre em simbiose com o universo do lado de fora.



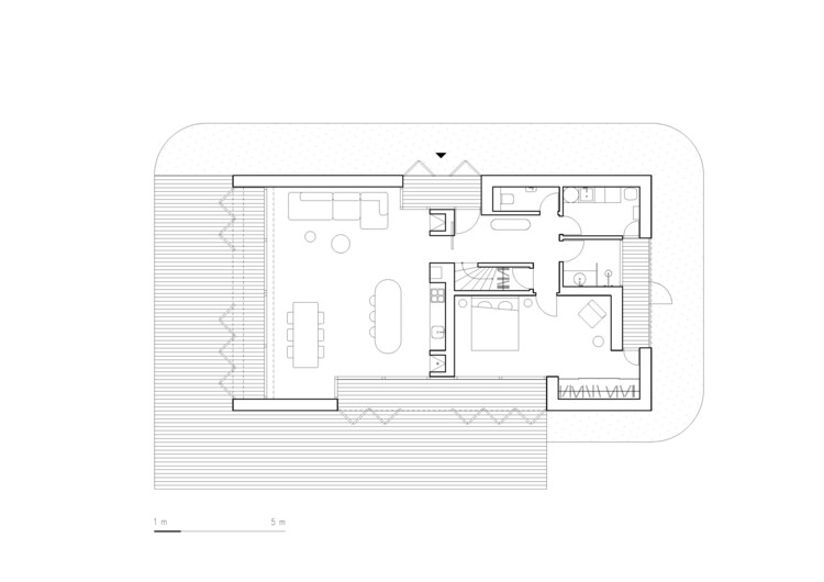
Perfeição, imperfeição, atemporalidade — O projeto da casa foi moldado pela topografia local e pelas restrições de construir em um terreno protegido culturalmente. Žaloudek integrou cuidadosamente a construção à paisagem e ao contexto histórico, assegurando que ela não sobrepujasse o château vizinho e transmitisse uma sensação de atemporalidade. Inspirado na ideia de uma capela — ausente na vila —, o arquiteto criou uma arquitetura que equilibra novos e antigos elementos, interior e exterior, perfeição e imperfeição. O projeto respeita a forma alongada tradicional das casas rurais com telhados de duas águas, adotando a linguagem dos edifícios agrícolas locais. A alvenaria perfurada, inspirada nas aberturas de construções históricas próximas, se tornou uma característica fundamental, permitindo a passagem de luz e ar e atuando como proteção solar na empena sul. Essa solução inspira também os painéis de sombreamento de madeira nas demais fachadas. O volume compacto da casa é pontuado por nichos nas fachadas — referências diretas à morfologia barroca —, que formam vestíbulos e loggias, proporcionando flexibilidade no controle de luz e ventilação. A construção combina alvenaria cerâmica isolada e elementos de concreto armado. A fachada é revestida com argamassa branca, em harmonia com o tom e a textura das construções vizinhas, enquanto o telhado é coberto com telhas cerâmicas, e os painéis de sombreamento são confeccionados em madeira de abeto e pinho checos, branqueados.

Ciclos naturais e luz — A vida na casa é intimamente ligada aos ciclos naturais e ao movimento da luz solar. Do quarto e da sala principal, que se abrem para o pomar, é possível observar o nascer do sol e da lua. A fachada sul, com sua empena perfurada e uma impressionante janela circular, conecta a área social ao pátio interno e às ruínas do celeiro. Generosas aberturas integram interior e exterior, prolongando-se em terraços de madeira e áreas verdes, envoltas pela presença fresca dos antigos muros de pedra. A fachada oeste, com seu nicho de entrada, protege a casa da vista da vila. Um nicho abobadado na empena norte traz luz natural para o quarto, banheiro e áreas de serviço, evocando as formas curvas do château barroco próximo. A entrada da luz pode ser modulada ao longo do dia com os painéis de madeira branca, permitindo que a casa se transforme rapidamente de um espaço banhado de luz para um ambiente mágico, onde a luz e a sombra criam efeitos hipnotizantes. À noite, a direção da iluminação se inverte, e a casa, com seus nichos iluminados, passa a brilhar na paisagem. A iluminação interna combina luminárias minimalistas brancas, lanternas de papel washi japonesas e a luz acolhedora do fogão a lenha.


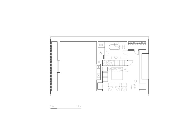
Inspiração sagrada — Por trás da morfologia tradicional da casa, encontra-se um interior original. Em contraste com o exterior branco, o interior é acolhedor e orgânico. O espaço principal surpreende com um teto abobadado que atinge sete metros de altura, reforçando a inspiração sacra do projeto. Paredes de estuque branco e grandes janelas emolduradas em alumínio ressaltam ainda mais o caráter etéreo do ambiente. Outro aceno à arquitetura eclesiástica é a grande janela circular de dois metros de diâmetro perfurando a empena sul. O centro da vida doméstica é uma cozinha curva em madeira, com ilha em granito indiano Shivakashi, reminiscentes de um altar de igreja. No lado sul, a área de jantar conta com uma mesa e cadeiras de carvalho, sob a proteção de uma escultura de madeira do século XIX representando a Virgem Maria. Em frente, uma área de estar com um longo sofá oferece vistas tanto para o campo quanto para o pátio interno. O sofá é enquadrado por uma tapeçaria de lã de ovelha natural. Além do espaço principal, o térreo inclui ainda banheiro, lavabo, área de serviço e um dos quartos. Móveis de madeira e pedra desenhados sob medida pelo arquiteto reforçam a unidade estética da casa: camas e armários em madeira maciça, um banco de granito preto no hall de entrada e mesas de cabeceira que harmonizam com o restante do mobiliário. O andar superior é concebido como um apartamento independente, com quarto, banheiro e estúdio. Ao contrário do térreo, que se abre para a paisagem, o sótão oferece um espaço fechado e acolhedor, ideal para reflexão, leitura e criação, iluminado apenas por pequenas janelas no telhado.




Arte em cada detalhe — A arte ocupa um papel central na vida da família, cuja coleção abrange desde o modernismo tcheco até obras contemporâneas. Esse amor pela arte está presente em todos os ambientes da casa. No hall de entrada, o visitante é recebido por uma máscara cerimonial de madeira do Gabão; na sala de estar, há um banquinho africano esculpido em uma única peça de madeira, além de cerâmicas originais de Martin Hanuš. No quarto principal, um panneau japonais do século XIX divide espaço com uma grande pintura contemporânea de Antonie Stanová e esculturas de Michal Janiga. No sótão, esculturas de pedra de Vanda Hvízdalová repousam sobre pedestais de travertino. Luminárias escultóricas Akari, desenhadas por Isamu Noguchi, iluminam tanto os quartos quanto o estúdio. A ampla coleção de livros de arte também integra naturalmente a atmosfera da casa.

Uma obra de arte total viva — Batizada em homenagem ao compositor cosmopolita Oskar Nedbal — que compôs sua opereta Sangue Polonês no château vizinho —, a Casa Oskar é um espaço que os proprietários desejam compartilhar. Esta obra de arte total, ou Gesamtkunstwerk, está aberta ao público, seja para estadias tradicionais, residências artísticas, eventos efêmeros ou workshops. O casal espera, assim, construir uma comunidade vibrante de pessoas criativas e inspiradoras ao redor da casa.







































