iO Menino Deus / OSPA Arquitetura e Urbanismo

iO Menino Deus / OSPA Arquitetura e Urbanismo - Fotografia de Exterior
© Alcindo Dedavid

iO Menino Deus / OSPA Arquitetura e Urbanismo - Fotografia de ExterioriO Menino Deus / OSPA Arquitetura e Urbanismo - Fotografia de Exterior, FachadaiO Menino Deus / OSPA Arquitetura e Urbanismo - Fotografia de ExterioriO Menino Deus / OSPA Arquitetura e Urbanismo - Fotografia de ExterioriO Menino Deus / OSPA Arquitetura e Urbanismo - Mais Imagens+ 25

  • Área Área deste projeto de arquitetura Área:  2865
  • Ano Ano de conclusão deste projeto de arquitetura Ano:  2019
  • Fotógrafo
    Fotografias:Alcindo Dedavid
  • Fabricantes Marcas com produtos usados neste projeto de arquitetura
    Fabricantes:  Alusistem, AutoDesk, Deca, Docol, Guardian Vidros, Pauluzzi, Portobello
  • Arquitetos Responsáveis: Ellen Renata Bernardi, Lucas Obino, Carolina Flach Souza Pinto, Cristiano Selbach Carneiro, Franco Miotto e Aline Taís Comiran.
  • Equipe De Projeto: Ellen Renata Bernardi, Carolina Flach Souza Pinto, Lucas Obino, Cristiano Carneiro, Franco Miotto, Aline Taís Comiran, Laura Aurvalle, Brunna Kronbauer, Bruna Ibrahim, Manoela Peruzzo
  • Clientes: Wikihaus
  • Arquitetura De Interiores: AMBIDESTRO
  • Engenharia: OSPA, Estádio 3
  • Cidade: Porto Alegre
  • País: Brasil
Mais informaçõesMenos informações
iO Menino Deus / OSPA Arquitetura e Urbanismo - Fotografia de Exterior
© Alcindo Dedavid

Descrição enviada pela equipe de projeto. Localizado no bairro Menino Deus, o prédio é o primeiro de uma série de projetos denominados True View, com curadoria da Wikihaus.

iO Menino Deus / OSPA Arquitetura e Urbanismo - Fotografia de Exterior, Fachada
© Alcindo Dedavid

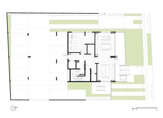
O edifício possui uma silhueta única que visa a ampliação dos espaços habitacionais. A tipologia em cascata permite o melhor aproveitamento do local e maximiza a área privada da unidade através da utilização de terraços privados.

iO Menino Deus / OSPA Arquitetura e Urbanismo - Imagem 15 de 30
© Alcindo Dedavid

A base do prédio abriga as áreas comuns (salão de festas, academia e lobby) e também estacionamento. Viver dentro e fora se manifesta na integração total do contexto: da unidade individual ao edifício em si e do edifício aos seus vizinhos.

iO Menino Deus / OSPA Arquitetura e Urbanismo - Fotografia de Exterior
© Alcindo Dedavid

Galeria do Projeto

Ver tudoMostrar menos
Sobre este escritório
Cita: "iO Menino Deus / OSPA Arquitetura e Urbanismo" 24 Jul 2021. ArchDaily Brasil. Acessado . <https://www.archdaily.com.br/br/965274/edificio-residencial-io-menino-deus-ospa> ISSN 0719-8906

¡Você seguiu sua primeira conta!

Você sabia?

Agora você receberá atualizações das contas que você segue! Siga seus autores, escritórios, usuários favoritos e personalize seu stream.