
-
Arquitetos: Oggo Studio Architects
- Área: 410 m²
- Ano: 2019
-
Fotografias:João Morgado

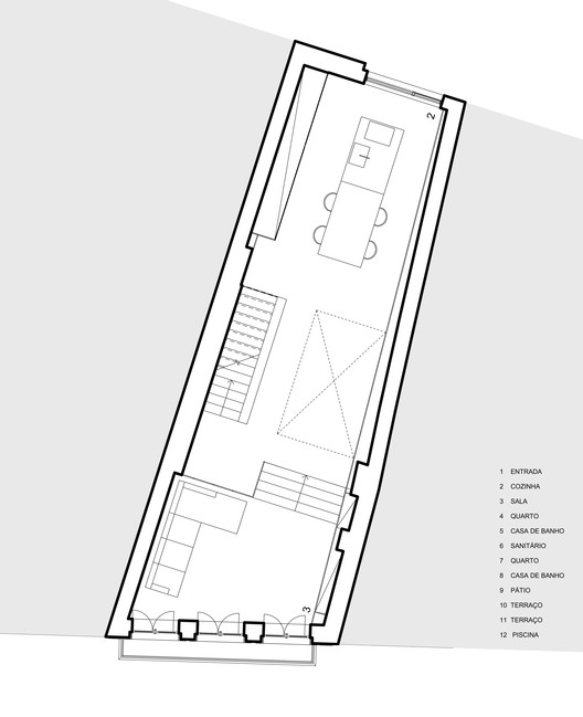
Descrição enviada pela equipe de projeto. O Apartamento Fernandes Tomás teve origem numa preexistência incomum, integrante da antiga e típica malha urbana portuense, alvo de um exercício de reabilitação urbana, que procurou explorar uma nova contemporaneidade espacial, proporcionando assim sensações fortes ao seu utilizador. Um edifício de volumetria longitudinal, com aberturas sobre a rua e sobre os logradouros contíguos, típicos da cidade. O programa surge de algumas intenções concisamente delineadoras, como a criação de um espaço assente na procura de luz, de espaços brutos minimalistas e de espaços exteriores como um pátio e um acesso à cobertura com piscina, procurando assim, uma ruptura com a generalização tradicionalmente atribuída aquilo que é um apartamento de cidade, para assim criar um conceito de “moradia” na densidade urbana. Surge com este delinear de conceitos a essência do projeto, na busca da criação de sensações com ambientes distintos entre luz e obscuridade, volumetrias amplas, espaço exterior dentro de casa.




O percurso inicia-se na fachada sobre a rua, reabilitada com apontamentos contemporâneos, onde surgem elementos de composição bem distintos, a entrada, marcada pelo volume onde se encontra o acesso em segundo plano e em primeiro plano os gradeamentos contemporâneos de desenho tradicional com influencia e abstração dos azulejos portugueses, os pisos superiores existentes da fachada onde se procurou limpar o desenho com vãos simples, e por fim, em volumetria recuada, a extensão vertical do edificado. Localizado na parte central do edifício, encaixado entre dois apartamentos contíguos, o Hall de entrada do apartamento isolado na volumetria surge assim de forma bruta, minimalista de cores obscurecidas, dissimulando os arrumos num desenho simples, num ambiente sombrio, em continuidade com a obtida no percurso desde a entrada do edifício, numa espécie de preparação teatral para a surpresa que se aproxima da representação espacial de formas, luz e sombras.




As escadas que ligam a entrada do apartamento ao piso superior, conduzem, assim, o utilizador numa evolução cromática e de luminosidade, passando de um ambiente exíguo, fechado, para um espaço amplo, de linhas puras e minimalistas, iluminado de forma abundante pelas grandes aberturas de fachada e pela entrada de luz vertical do pátio implantado no centro apartamento. Procurou-se que o utilizador, ao chegar a este espaço social, obtivesse uma leitura imediata do mesmo, assim como, a perceção da função a que cada espaço se destina. As diferentes cotas de piso ou desníveis existentes e os volumes criados são usados para definir as diversas funções que ao novo espaço se atribuem. Observar os jogos de luzes/sombras dos telhados durante o dia, e os jogos de luz das iluminações noturnas da cidade, é um privilégio dado ao utilizador, que faz com que o apartamento de Fernandes Tomás ofereça uma experiência sensorial de estar no interior de uma “moradia”. É como estar fora da cidade e senti-la em simultâneo.


















