Escritório Integral Investimentos / AsDesign Arquitetura

Escritório Integral Investimentos / AsDesign Arquitetura - CadeiraEscritório Integral Investimentos / AsDesign Arquitetura - Bancada, Pia, CozinhaEscritório Integral Investimentos / AsDesign Arquitetura - Bancada, Fachada, Vidro, JanelaEscritório Integral Investimentos / AsDesign Arquitetura - Cadeira, MesaEscritório Integral Investimentos / AsDesign Arquitetura - Mais Imagens+ 35

São Paulo, Brasil
  • Arquitetos: AsDesign Arquitetura; AsDesign Arquitetura
  • Área Área deste projeto de arquitetura Área:  550
  • Ano Ano de conclusão deste projeto de arquitetura Ano:  2017
  • Fotógrafo
    Fotografias:Samuel Alexandre
  • Fabricantes Marcas com produtos usados neste projeto de arquitetura
    Fabricantes:  Abatex, AutoDesk, Chaos Group, Duratex, Poltronas, Protecnica, R.O olaria, Romanzza Indaiatuba, Trimble Navigation
Escritório Integral Investimentos / AsDesign Arquitetura - Cadeira
© Samuel Alexandre

Descrição enviada pela equipe de projeto. Empresa do mercado financeiro que buscava um projeto moderno, sóbrio, que transmite confiança. A área da recepção era grande e o proprietário queria que aproveitássemos ao máximo o espaço. Então, pensamos em um espaço de descompressão para os funcionários, mas que ao mesmo tempo fosse utilizada como local de espera dos clientes e visitantes.

Escritório Integral Investimentos / AsDesign Arquitetura - Iluminação, Cadeira
© Samuel Alexandre
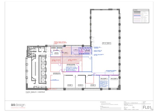
Planta - Layout
Escritório Integral Investimentos / AsDesign Arquitetura - Cadeira
© Samuel Alexandre

Outra solicitação foi a criação de uma sala de reunião/auditório, que comportasse uma média de 20 pessoas, para realização de reuniões e palestras. Nesse caso, optamos por uma mesa em V, para que o palestrante pudesse circular entre os ouvintes. Foi uma reforma realizada no imóvel para a entrada desse escritório. A empresa anterior tinha um layout completamente diferente, que não correspondia às necessidades deste. Construímos banheiros, copa e salas de reuniões.

Escritório Integral Investimentos / AsDesign Arquitetura - Cadeira
© Samuel Alexandre

Partimos da ideia da utilização de dois tipos de revestimentos na área da recepção até a descompressão e decidimos que seria o cimento queimado e a madeira. O segundo passo foi decidir como seriam aplicados de maneira uniforme. Então decidimos aplicar a madeira em toda extensão da sala. Uma espécie de faixa que vem do teto, desce a parede, e segue pelo piso, revestindo também o balcão da recepção. O cimento queimado foi aplicado nas laterais do piso e teto e na parede.

Escritório Integral Investimentos / AsDesign Arquitetura - Mesa, Janela, Sofá, Iluminação, Cadeira
© Samuel Alexandre

Galeria do Projeto

Ver tudoMostrar menos
Sobre este escritório
Cita: "Escritório Integral Investimentos / AsDesign Arquitetura" 07 Jul 2019. ArchDaily Brasil. Acessado . <https://www.archdaily.com.br/br/920132/escritorio-integral-investimentos-asdesign-arquitetura> ISSN 0719-8906

¡Você seguiu sua primeira conta!

Você sabia?

Agora você receberá atualizações das contas que você segue! Siga seus autores, escritórios, usuários favoritos e personalize seu stream.