Casa dos Eixos / BLOCO Arquitetos

Casa dos Eixos / BLOCO Arquitetos - Imagem 2 de 28Casa dos Eixos / BLOCO Arquitetos - CadeiraCasa dos Eixos / BLOCO Arquitetos - Sofá, Mesa, Cadeira, VigaCasa dos Eixos / BLOCO Arquitetos - Janela, FachadaCasa dos Eixos / BLOCO Arquitetos - Mais Imagens+ 23

Brasilia, Brasil
  • Arquitetos: BLOCO Arquitetos; BLOCO Arquitetos
  • Área Área deste projeto de arquitetura Área:  442
  • Ano Ano de conclusão deste projeto de arquitetura Ano:  2016
  • Fotógrafo
    Fotografias:Haruo Mikami
  • Fabricantes Marcas com produtos usados neste projeto de arquitetura
    Fabricantes:  Adobe, AutoDesk
  • Categoria: Casas
  • Engenharia: Grid Engenharia
  • Paisagismo: Mariana Siqueira
  • Consultores: André Torres
  • Arquitetos Responsáveis: Daniel Mangabeira, Henrique Coutinho, Matheus Seco
  • Equipe De Projeto: Victor Machado, Guilherme Mahana, Luciana Ribeiro, Marina Lira, Bárbara Neumann
  • Cidade: Brasilia
  • País: Brasil
Mais informaçõesMenos informações
Casa dos Eixos / BLOCO Arquitetos - Janela, Fachada
© Haruo Mikami

Descrição enviada pela equipe de projeto. A Casa dos Eixos está em uma região de Brasília onde o tecido urbano é unicamente estruturado por uma sequência de condomínios horizontais de médio porte, fechados e sem conexão direta entre si. Neste contexto, o objetivo inicial foi maximizar a conexão entre a rua e a casa afim de aumentar o contato visual entre os vizinhos mais próximos e estimular a interação entre eles.

Casa dos Eixos / BLOCO Arquitetos - Janela, Fachada
© Haruo Mikami
Isometrica
Casa dos Eixos / BLOCO Arquitetos - Janela, Fachada
© Haruo Mikami

As grandes construções existentes nos lotes laterais direcionaram a acomodação da casa em um só volume localizado próximo ao limite noroeste do terreno, à direita do lote. Desta forma foi possível liberar a porção sudeste do terreno para a implantação da área de lazer, jardim e piscina. Trata-se da área exposta ao sol da manhã, para onde se abrem quartos, sala e varanda. Na frente da casa os desníveis entre as rampas de acesso dão lugar a jardins e um banco de uso público. Recuamos o gradil para atenuar o limite entre espaço público e privado, aumentar o jardim externo para uso comum dos condôminos e maximizar o vínculo da casa com a rua.

Casa dos Eixos / BLOCO Arquitetos - Janela, Fachada
© Haruo Mikami

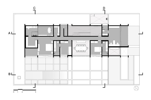
O programa de necessidades foi organizado de tal modo que os diferentes vãos agrupassem ambientes com medidas similares a eles. Deixamos que os eixos estruturais ficassem aparentes através da exposição dos pilares periféricos. Nos interessava a ideia de que o sistema estrutural pudesse refletir externamente as medidas das funções internas tais como banheiros, quartos, salas, escada e cozinha. A marcação estrutural, que também está presente em vigas e pilares aparentes nos interiores, extrapola o limite da edificação e marca o piso externo com os eixos de locação de piscina, jardins e calçadas.

Casa dos Eixos / BLOCO Arquitetos - Cadeira
© Haruo Mikami

Galeria do Projeto

Ver tudoMostrar menos
Sobre este escritório
Cita: "Casa dos Eixos / BLOCO Arquitetos" 22 Mai 2019. ArchDaily Brasil. Acessado . <https://www.archdaily.com.br/br/917491/casa-dos-eixos-bloco-arquitetos> ISSN 0719-8906

¡Você seguiu sua primeira conta!

Você sabia?

Agora você receberá atualizações das contas que você segue! Siga seus autores, escritórios, usuários favoritos e personalize seu stream.