Centro Nacional de Design Gráfico Le Signe / MOATTI-RIVIERE

Centro Nacional de Design Gráfico Le Signe / MOATTI-RIVIERE - Imagem 2 de 19Centro Nacional de Design Gráfico Le Signe / MOATTI-RIVIERE - Imagem 3 de 19Centro Nacional de Design Gráfico Le Signe / MOATTI-RIVIERE - Imagem 4 de 19Centro Nacional de Design Gráfico Le Signe / MOATTI-RIVIERE - Imagem 5 de 19Centro Nacional de Design Gráfico Le Signe / MOATTI-RIVIERE - Mais Imagens+ 14

  • Arquitetos: MOATTI-RIVIERE
  • Área Área deste projeto de arquitetura Área:  2
  • Ano Ano de conclusão deste projeto de arquitetura Ano:  2016
  • Fotógrafo
    Fotografias:Michel Denancé
  • Fabricantes Marcas com produtos usados neste projeto de arquitetura
    Fabricantes:  Ateliers de France, Curot, ENGIE AXIMA, Kabox, Manchin, Ronzat, SAS Devaux, Smac
  • Arquiteto Responsável: Alain Moatti
  • Engenharia: Graphics and signage
  • Estrutura: RFR
  • Fluidos: Inex
  • Levantamento De Custos: Bureau Michel Forgue
  • Iluminação: Lumières Studio
  • Acústica: Avel
  • Preventive Conservation Consultant: Les sentinelles des collections
  • Multimídia E Audiovisual: Vincent Taurisson
  • Cidade: Chaumont
  • País: França
Mais informaçõesMenos informações
Centro Nacional de Design Gráfico Le Signe / MOATTI-RIVIERE - Imagem 6 de 19
© Michel Denancé

Descrição enviada pela equipe de projeto. Nosso projeto é composto por grandes planos instalados dentro da cidade. O desenho arquitetônico representa o universo do design gráfico, dos objetos e dos itens que sempre fizeram parte desta forma de arte e continuam até hoje: o cartaz - a folha de papel - a página - a tela - o outdoor.

Centro Nacional de Design Gráfico Le Signe / MOATTI-RIVIERE - Imagem 3 de 19
© Michel Denancé

Estes grandes planos são feitos de painéis de pedra e compõem as paredes e as coberturas. Estes painéis são delgados, com 12 centímetros de espessura, e por isso se tornam abstratos. Essa espessura é alcançada pela inclusão de um material rígido no núcleo do painel, uma malha de alumínio hexagonal. 

Centro Nacional de Design Gráfico Le Signe / MOATTI-RIVIERE - Imagem 18 de 19
Corte
Centro Nacional de Design Gráfico Le Signe / MOATTI-RIVIERE - Imagem 17 de 19
Corte

Estes planos justapostos ou sobrepostos estão próximos ou distanciados uns dos outros. Entre eles há grandes áreas em vidro, superfícies que podem ser fechadas com cortinas. Desta forma, é possível ver o interior do espaço a partir do exterior.

Centro Nacional de Design Gráfico Le Signe / MOATTI-RIVIERE - Imagem 4 de 19
© Michel Denancé

Pedra e vidro compõem conjuntos simples ou complexos para responder aos diferentes papéis das fachadas que se relacionam com a rua:
- nas esquinas, compõem um agrupamento em série que marca a expressão pública do edifício a partir de sua monumentalidade.
- no lado da ruela da estação, eles são simplesmente justapostos ou projeções.
- no lado do banco, essas peças de pedra são móveis e permitem abrir a sala de exposição para o exterior, promovendo uma continuidade com o pátio e também com a cidade.
- três planos, mais elevados que os outros, oferecem suas superfícies para instalações monumentais em articulações estratégicas: na saída da estação, na entrada da cidade na rue de Verdun e no centro do «SIGNE» de frente para a Place des Arts.

Centro Nacional de Design Gráfico Le Signe / MOATTI-RIVIERE - Imagem 5 de 19
© Michel Denancé

Projeto gráfico minimalista como uma epiderme da arquitetura
A intervenção gráfica em seu minimalismo adere deliberadamente à arquitetura, aparecendo nas paredes como uma marca d'água, marcando sua superfície.

Centro Nacional de Design Gráfico Le Signe / MOATTI-RIVIERE - Imagem 16 de 19
Perspectiva Axonométrica

Duas telas de pontos regulares e ortogonais estruturam graficamente os painéis de pedra do Centro.

De cima, uma tela de pontos metálicos na escala monumental do edifício se reduz à altura de uma pessoa, conectando-se a uma tela de pontos menores impressos.

Centro Nacional de Design Gráfico Le Signe / MOATTI-RIVIERE - Imagem 2 de 19
© Michel Denancé

Em sua parte superior, estas telas podem funcionar como um trilho ou uma cimalha para receber imagens em qualquer formato.

Os espaços de paredes livres oferecem suas superfícies aos convidados de eventos especiais, propondo que artistas como tipógrafos, artistas de cartazes, designers gráficos e ilustradores as utilizem.

Centro Nacional de Design Gráfico Le Signe / MOATTI-RIVIERE - Imagem 13 de 19
Planta Baixa - Nível 00

As superfícies de pedra oferecem múltiplos usos, dando suporte a eventos, sinalização e imagens desenhadas, estáticas ou projetadas. Estes usos "visuais" garantem a capacidade da arquitetura de encarnar e transmitir a essência e o caráter atual do lugar, sua legitimidade e ousadia.

Centro Nacional de Design Gráfico Le Signe / MOATTI-RIVIERE - Imagem 7 de 19
© Michel Denancé

Assim, elas possibilitam renovar e atualizar todos os escritos e movimentos, de obras históricas ao design gráfico contemporâneo.

Centro Nacional de Design Gráfico Le Signe / MOATTI-RIVIERE - Imagem 8 de 19
© Michel Denancé

Descrição do Produto.
Materiais da fachada: As "folhas" de pedra são feitas de um complexo revestimento, de 120 mm, constituído por uma superfície de pedra natural de 5 mm, colada a uma manta hexagonal de alumínio a partir de fibras de vidro impregnadas com resina epóxi. O complexo compreende, na sua face traseira, insertos encaixados na resina permitindo a fixação de reforços feitos de folhas dobradas em Z.
Tipo de pedra: Calcário Moka creme
Dimensões: 120 x 240 cm
Exterior: carpintaria de aço
Interior: paredes estruturais e piso de concreto bruto.

Centro Nacional de Design Gráfico Le Signe / MOATTI-RIVIERE - Imagem 14 de 19
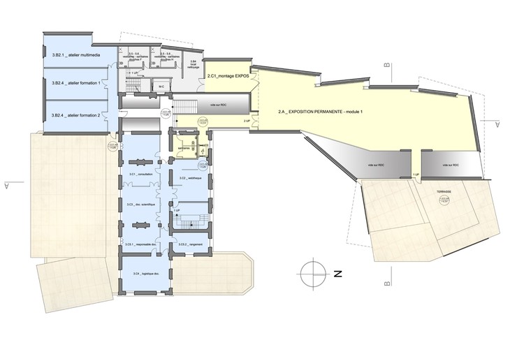
Planta Baixa - Nível 01

Centro Nacional de Design Gráfico Le Signe / MOATTI-RIVIERE - Imagem 9 de 19
© Michel Denancé

Galeria do Projeto

Ver tudoMostrar menos
Sobre este escritório
Cita: "Centro Nacional de Design Gráfico Le Signe / MOATTI-RIVIERE" [Le Signe National Centre for Graphic Design / MOATTI-RIVIERE] 23 Mar 2017. ArchDaily Brasil. Acessado . <https://www.archdaily.com.br/br/867236/centro-nacional-de-design-grafico-le-signe-moatti-riviere> ISSN 0719-8906

¡Você seguiu sua primeira conta!

Você sabia?

Agora você receberá atualizações das contas que você segue! Siga seus autores, escritórios, usuários favoritos e personalize seu stream.