
-
Arquitetos: Perkins&Will
- Área: 600 m²
- Ano: 2016
-
Fotografias:Daniel Ducci
.jpg?1483728335)
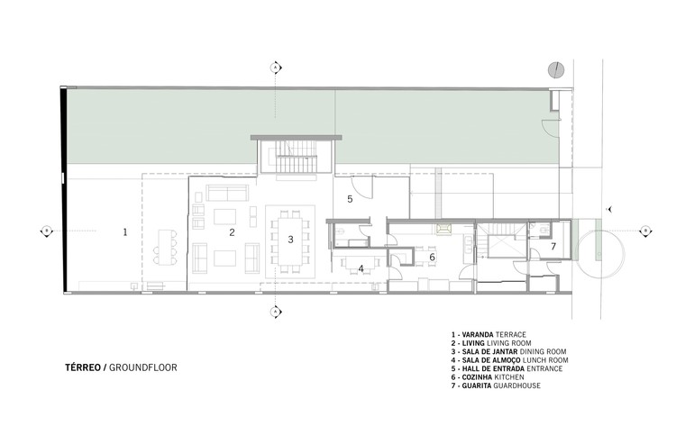
Descrição enviada pela equipe de projeto. Trabalhar em estreito terreno de 415 metros quadrados, de 9,5 metros de frente por 32 de profundidade, foi o grande desafio da Perkins+Will ao ser contratada para este projeto. Como encaixar um programa residencial complexo de aproximadamente 600 metros ao mesmo tempo deixando-os integrados e comunicados?


.jpg?1483728611)
.jpg?1483728543)
.jpg?1483728774)
.jpg?1483728764)
.jpg?1483728677)
.jpg?1483728335)
.jpg?1483728382)
.jpg?1483728369)
.jpg?1483728960)
.jpg?1483728914)
.jpg?1483728926)
.jpg?1483728851)
.jpg?1483728528)
.jpg?1483728444)
.jpg?1483728416)
.jpg?1483728623)
.jpg?1483728866)
.jpg?1483728600)
.jpg?1483728666)
.jpg?1483728486)











