

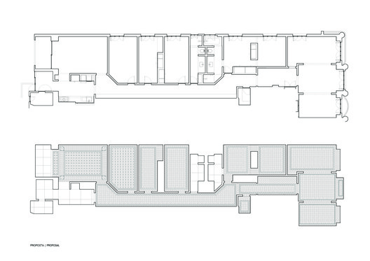
Descrição enviada pela equipe de projeto. O apartamento, com dimensões excepcionais – trinta e três metros de profundidade e sete metros de largura –, apresenta um subaproveitamento dos espaços existentes – um extenso corredor escuro com quinze metros de profundidade, lambrim de azulejos em variadas zonas, instalações sanitárias desadequadas e um pavimento em madeira, regulador de todo o espaço.

Procura-se a luminosidade através de alterações espaciais pontuais, ligando-se visualmente a cozinha com a sala. Esta participa mas não se deixa visualizar. A sala de jantar ganha luz e uma varanda. As portas são eliminadas, reforçando-se assim o caracter de permeabilidade que se procura. Recupera-se o pavimento, redesenha-se onde necessário, repondo-se onde outrora existiu.



É bom ir jantar a casa dos clientes e ver as crianças que moram no edifício a circular entre o logradouro e as salas. Ficamos com a sensação que foram criadas as condições para que a vida tenha lugar.




























































