

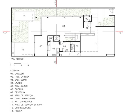
Descrição enviada pela equipe de projeto. Residência de estrutura de concreto com detalhes em aço foi implantada em terreno urbano plano. A estrutura tipo pilotis com pilares redondos no térreo sustenta uma laje de concreto e forro de gesso liberando a integração com o jardim externo com o mínimo de interferência visual.


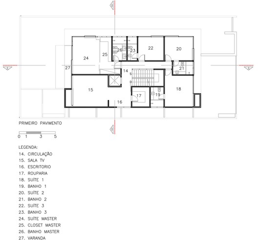
No superior ficam os dormitórios interligados por uma escada cascata de concreto e piso de madeira. A proteção visual se dá por meio de um longo caixilho de madeira bastante recuado que atravessa como um rasgo toda a fachada da casa.


O terraço da cobertura abriga o escritório, adega e a sala intima e dando para a copa das árvores centenárias do entorno do parque Ibirapuera.Os materiais utilizados são naturais e tradicionais.A massa externa é texturizada rústica feita no local e as colunas de concreto aparente. Os pisos, soleiras e peitoris são de mármore travertino.


Os caixilhos, pisos da escada e dormitórios são de madeira. A marcenaria foi toda desenhada pelo escritório e os interiores seguem os tons neutros e naturais.






















