.jpg?1424970675)
- Área: 190 m²
- Ano: 2010
-
Fotografias:Fernando Cavalcanti
.jpg?1424970676)
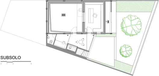
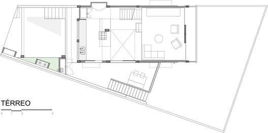
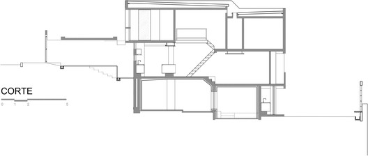
Descrição enviada pela equipe de projeto. A reforma deste sobrado, construído em um terreno em declive, teve como premissas a requalificação dos espaços internos e a criação de um novo pavimento no subsolo para a instalação de um estúdio de música.

O subsolo, semienterrado, foi todo escavado para obter o máximo de pé-direito possível, os degraus e desníveis desse pavimento foram sendo criados para acomodar as fundações da casa que afloraram com a remoção do solo.

Foi projetado um novo anexo lateral a casa criando, no nível do subsolo, a entrada e apoio dos estúdios de música e, no nível do pavimento térreo, uma varanda para qual a cozinha e sala de jantar se abrem promovendo a integração dos espaços internos e externos.
.jpg?1424970703)
Materiais
- tijolo aparente;
- caixilhos de ferro;
- piso de granilite e assoalho de madeira;
- piso externo de fuje;
- marcenaria em compensado e fórmica.
.jpg?1424970675)
.jpg?1424970740)
.jpg?1424970676)


.jpg?1424970742)
.jpg?1424970768)
.jpg?1424970774)

.jpg?1424970702)
.jpg?1424970703)



