
-
Arquitetos: Angela Castilho Arquitetura e Interiores
- Área: 512 m²
- Ano: 2022
-
Fotografias:Edgard Cesar

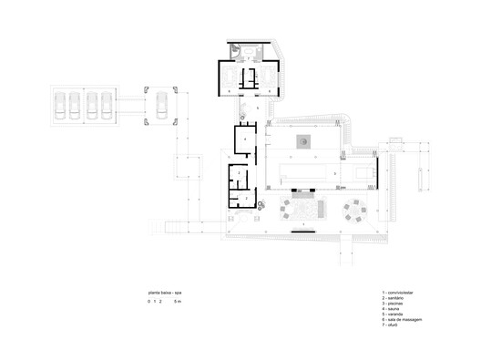
Descrição enviada pela equipe de projeto. Em meio à natureza, o Spa do Rancho foi projetado como um refúgio para os sentidos. O pedido inicial do cliente era claro: criar um espaço de bem-estar completo, com piscinas de diferentes temperaturas, salas de massagem, sauna e áreas de descanso. A resposta veio por meio de uma arquitetura que valoriza o tempo, o silêncio e a relação direta com a natureza.











































