
-
Arquitetos: Sonne Müller Arquitetos
- Área: 500 m²
- Ano: 2025
-
Fotografias:Pic Company

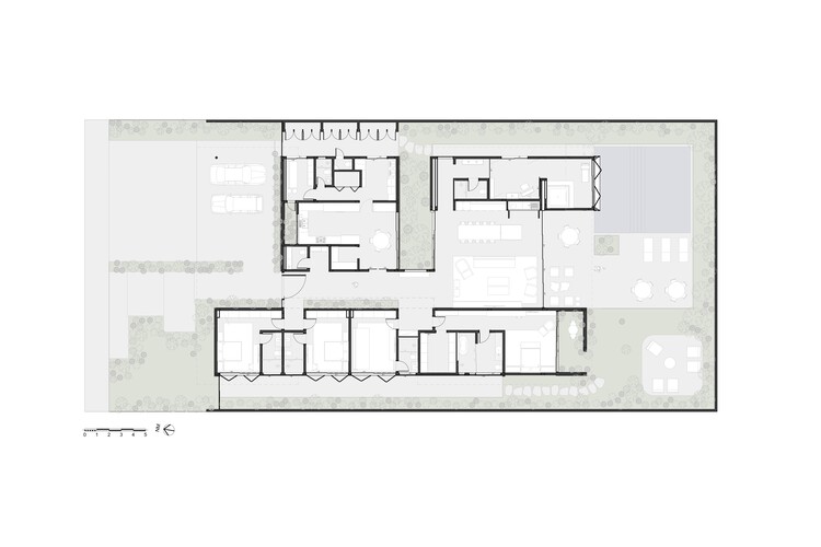
Descrição enviada pela equipe de projeto. A Casa Galeria foi projetada para uma artista plástica de 84 anos que buscava uma residência térrea, ampla e contemporânea, onde cotidiano e contemplação pudessem coexistir sem barreiras físicas. O ponto de partida foi a necessidade de criar uma casa totalmente nivelada, com circulações largas e ambientes fluidos, garantindo conforto, autonomia e leitura simples dos espaços.


A circulação principal se torna o eixo estruturador da proposta. Generosa, iluminada zenitalmente e acompanhada por madeira e paisagismo, ela funciona como galeria para as obras da moradora. Cada quadro foi previamente estudado, definindo-se sua posição e o desenho da iluminação, aproximando arquitetura e arte desde as etapas iniciais do projeto.

A área social se organiza como um grande campo contínuo, integrando estar, jantar e gourmet. As coberturas elevadas e esbeltas, ligeiramente inclinadas, ampliam o pé-direito e qualificam a entrada de luz, criando uma atmosfera leve e acolhedora. Essa solução também reforça a permeabilidade visual com o exterior e acentua a vocação da casa para receber família e amigos.

A ala íntima é marcada pela presença da pedra natural, que confere textura e estabilidade aos volumes. A suíte master recebeu um jardim privativo, concebido como respiro verde e como extensão sensorial do ambiente. A materialidade segue um vocabulário preciso: madeira nos forros, com paginação que valoriza seus veios; estrutura metálica permitindo vãos livres e contribuindo para a leveza; pedra natural como contraponto de peso e permanência; e brises de alumínio que filtram a luz e controlam a privacidade.


Um dos momentos mais singulares do projeto é o volume da academia e do SPA, implantado sobre a piscina. O óculo que articula esses dois elementos foi desenhado com atenção extrema aos níveis e à estrutura, gerando o efeito desejado de suspensão e garantindo continuidade visual entre água, luz e arquitetura.

A relação entre interiores e arquitetura ocorreu de maneira integrada: pisos, revestimentos, madeira, granitos, mobiliário e iluminação foram definidos em conjunto para reforçar coerência e unidade espacial. Essa integração também garantiu que o percurso da casa mantivesse uma narrativa contínua, ora contemplativa, ora social.

A Casa Galeria se apoia em princípios essenciais ao projeto: vãos generosos, uso criterioso dos materiais, clareza estrutural e espacial, integração com a paisagem e atenção rigorosa ao detalhe.
























