
-
Arquitetos: Trung Tran Studio
- Área: 270 m²
- Ano: 2025
-
Fotografias:Trieu Chien

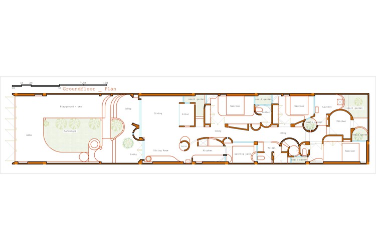
Descrição enviada pela equipe de projeto. A Casa Nang é uma pequena casa, construída nos subúrbios rurais de Hanói, onde a urbanização acontece cada vez mais rapidamente, quebrando gradualmente a estrutura rural tradicional.







A casa é projetada para uma família típica de três gerações no Vietnã rural, incluindo pais idosos, um casal jovem e crianças pequenas. A casa é construída em um jardim com muitas árvores grandes existentes; o design mantém todas as árvores intactas.



O principal espaço de estar está recuado, criando espaço para o jardim e a garagem, junto com uma área de chá na frente. O principal espaço de estar inclui uma sala de estar, uma sala de culto e uma sala de jantar no centro do terreno, conectado a 4 quartos e espaço auxiliar nos fundos.


























