
-
Arquitetos: HGAA, Jieun Jun, Taewon Park, naïve practice
- Área: 320 m²
- Ano: 2025
-
Fotografias:Daisy Ziyan Zhang, Hoang Le
-
Fabricantes: Artsteel, GiaLong

Descrição enviada pela equipe de projeto. O projeto desta casa unifamiliar, de proporções verticais, teve origem em duas narrativas: a história profundamente pessoal do casal de clientes e os princípios bastante genéricos dos tipos de habitação próprios do clima de Hanói.

A história genérica do clima regional e da habitação: o projeto é inspirado em um diagrama russo do século XIX que mapeia os tipos de habitação para suas zonas climáticas correspondentes. Este desenho atribui uma tenda compacta à tundra, uma pequena cabana de madeira às zonas do norte, uma casa de estrutura de madeira à zona média e uma casa porosa de palha com amplo espaço aberto às zonas tropicais. Este diagrama demonstra com clareza como o volume da habitação se expande à medida que o clima se torna mais quente e úmido. As casas tradicionais de Hanói seguem os princípios característicos das zonas tropicais.

A casa está conectada a amplos espaços ao ar livre para circulação de ar e é cercada por árvores para filtrar a luz. No entanto, o desenvolvimento moderno da cidade tem se concentrado em acomodar a densidade populacional em crescimento exponencial, em vez de preservar a tipologia de habitação tradicional para conforto térmico passivo. Esta casa tenta incorporar a circulação de ar e a filtragem da luz, características comumente encontradas na arquitetura regional, dentro do contexto de alta densidade de Hanói.


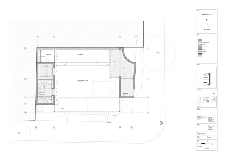
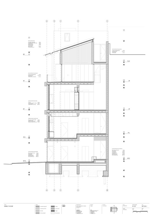
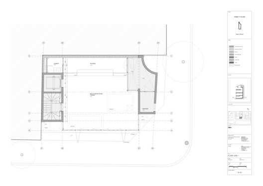
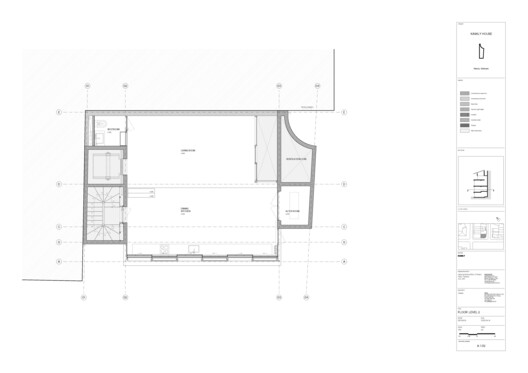
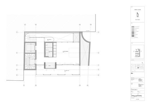
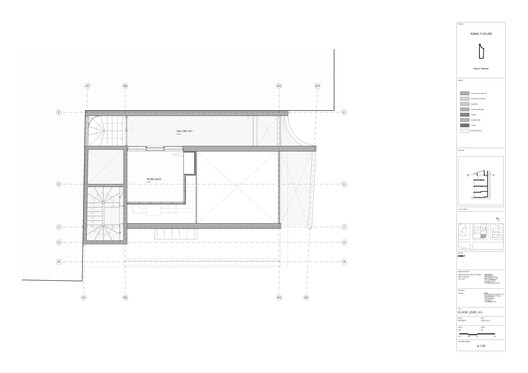
A casa é composta por dois núcleos verticais que ancoram extremidades opostas do terreno, conectados por uma laje de cobertura. Um núcleo facilita a circulação humana, enquanto o outro canaliza o fluxo de ar por meio de um tubo de concreto aberto que filtra a luz e conduz o ar através de um pátio semiexterior. Esses vazios verticais em camadas geram ventilação natural em todos os espaços de estar. A luz solar oeste é mitigada por fachadas com persianas e venezianas deslizantes, que podem se abrir amplamente nas horas mais frescas da manhã e da noite para criar ventilação cruzada. Embora o projeto não busque ser uma casa passiva termicamente ideal, procura oferecer uma solução regional para o conforto térmico em uma condição desafiadora: uma quadra urbana de alta densidade.

A história profundamente pessoal dos cliente: um casal casado há muitos anos buscava uma solução para conciliar seus ciclos de vida bastante distintos. O marido inicia o dia cedo, enquanto a esposa vai dormir quase no momento em que ele acorda. Em vez de forçar uma convergência, propusemos preservar a distância entre seus espaços privados, ao mesmo tempo em que criamos múltiplas maneiras indiretas de perceber a presença um do outro e possibilitar uma comunicação suave.


A conexão mais direta se manifesta como uma sacada interna: uma pequena plataforma suspensa dentro de um vazio alto que facilita encontros breves entre o casal. Espacialmente, seus quartos se conectam verticalmente por meio de dois vazios compartilhados, onde a luz e o som transitam com diferentes intensidades. Esses mesmos vazios conduzem o ar fresco por toda a casa, criando não apenas circulação térmica, mas também uma sensação intangível de coabitação que respeita seus ritmos individuais ao mesmo tempo em que preserva sua conexão.































