
-
Arquitetos: Tadu Arquitetura
- Área: 150 m²
- Ano: 2025
-
Fotografias:Arthur Duarte

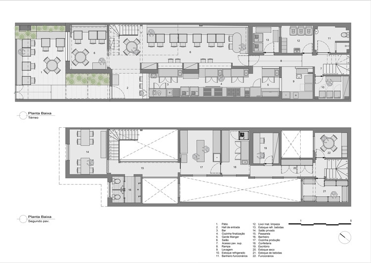
Descrição enviada pela equipe de projeto. Localizado no bairro de Pinheiros, São Paulo, o Caco é mais um exemplo de reinterpretação de espaços urbanos de forma acolhedora e funcional.

O projeto parte de uma construção pré-existente, preservando elementos originais como as paredes de tijolos aparentes pintadas de branco e janelas, que reforçam a atmosfera cosmopolita e informal.

A casa se abre para a rua por meio de grandes vãos e toldos em tecido, criando uma conexão fluida entre o ambiente interno e a calçada. No interior, a paleta de materiais combina o calor da madeira, a rusticidade dos tijolos e toques metálicos sutis, resultando em um espaço equilibrado entre o clássico e o contemporâneo.

A disposição das mesas foi pensada para garantir flexibilidade, contemplando desde encontros intimistas até grupos maiores. O bar, revestido lajotas cerâmicas alaranjados, atua como ponto focal, recebendo luz natural filtrada por grandes aberturas zenitais. A iluminação, majoritariamente natural durante o dia, se transforma à noite com luminárias pontuais e temperatura de cor quente, intensificando o clima convidativo. Plantas estrategicamente posicionadas suavizam as transições entre áreas e reforçam a relação do restaurante com a rua.

O Caco reflete a filosofia do escritório de valorizar a memória arquitetônica, atualizando-a para novas formas de convivência — um espaço que convida a entrar, permanecer e voltar.











