
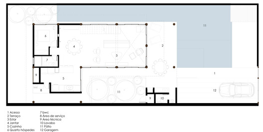
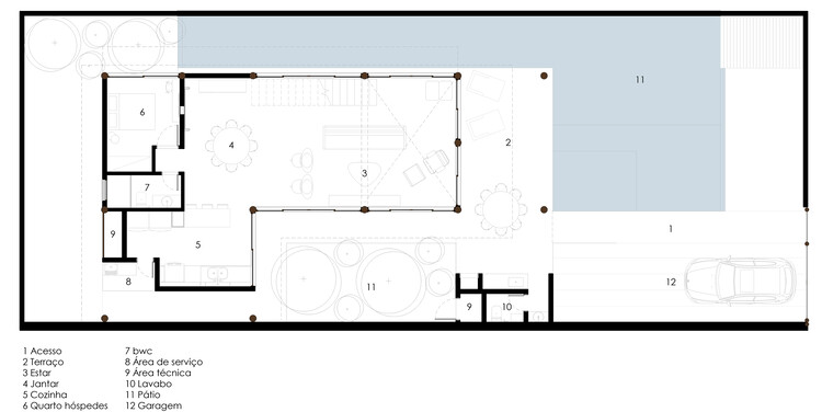
-
Arquitetos: Bruno Tinoco Arquitetura
- Área: 206 m²
- Ano: 2021
-
Fotografias:Paulo Higor Nunes

Descrição enviada pela equipe de projeto. Localizada na Praia de Serrambi, no litoral sul de Pernambuco, esta residência concluída em 2021 foi projetada como um refúgio de contemplação e convivência, privilegiando a integração entre arquitetura, natureza e vida cotidiana. O projeto se ancora na madeira como elemento estrutural e estético central, explorando sua expressividade e reafirmando a busca por uma linguagem tectônica enraizada na organicidade dos materiais.















