
-
Arquitetos: KSM Architecture
- Ano: 2024
-
Fotografias:Sreenag Pictures

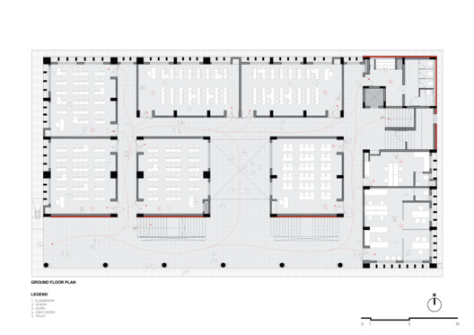
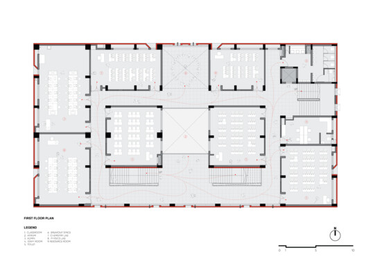
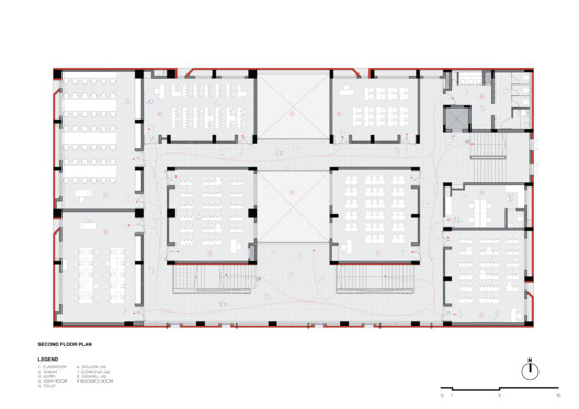
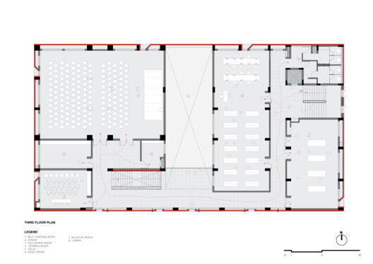
Descrição enviada pela equipe de projeto. A Anjuman-E-Himayat-E-Islam Trust, localizada em Thiagaraya Nagar, Chennai, existe há mais de cento e trinta anos. A instituição oferece cuidado e educação a crianças órfãs e de baixa renda. O novo projeto foi concebido para atender meninos órfãos do 6º ao 12º ano, em um terreno designado dentro de um campus de 10 acres que abriga uma mesquita, diversas escolas, centros de formação profissional e alojamentos para jovens em situação de vulnerabilidade. A construção foi financiada por benfeitores ligados à instituição e realizada dentro de um orçamento restrito.



























