
-
Arquitetos: Paulo Martins
- Área: 375 m²
- Ano: 2024
-
Fotografias:Ivo Tavares Studio
-
Fabricantes: Faro Barcelona TOC, Santa&Cole TMM

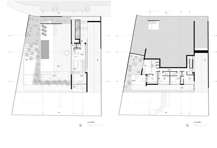
Descrição enviada pela equipe de projeto. Esta moradia está situada num terreno inclinado dentro do campo de golfe da Quinta dos Alcoutins em Lisboa, com um desnível de sete metros que define a sua organização espacial.

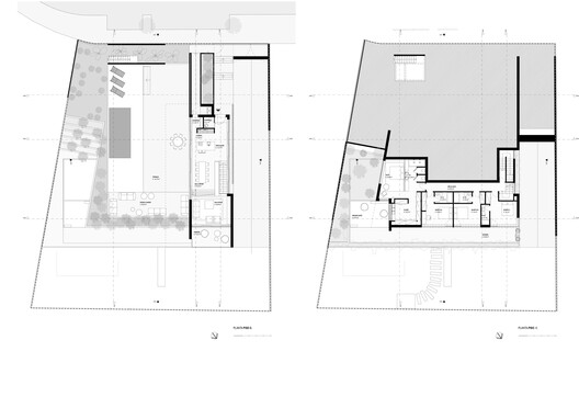
A entrada principal localiza-se no nível superior, enquanto o piso mais baixo acolhe a zona de estacionamento e as áreas técnicas, com acesso direto ao relvado do campo e golf. As zonas privadas estão dispostas no nível intermédio.

A casa abre-se para a paisagem e resguarda-se das vistas dos vizinhos. Um terraço lateral — onde se encontra a piscina — e uma série de varandas definem o gesto arquitectónico do projecto: espaços fluidos, abertos, com limites difusos, que reflectem a visão dos clientes de um modo de vida mais livre e conectado.

No topo da casa encontra-se uma cobertura inspirada na arquitectura rural portuguesa, na vegetação tropical e num estilo de vida descontraído. Esta desenrola-se como uma superfície dobrada de formas de duas águas, revestida a zinco no exterior e a nogueira no interior. Aberturas estrategicamente colocadas na sua geometria oferecem vistas poéticas e filtradas do céu através de ripas de madeira.


As zonas sociais situam-se ao nível da entrada e ligam-se de forma fluida ao terraço principal através de uma grande abertura rebaixada. Os quartos e suites estão localizados no piso inferior, onde uma entrada mais discreta acentua o impacto visual e emocional das vistas sobre o campo de golfe.


Uma paleta de materiais contida — reboco branco e madeira de ipê no exterior, microcimento e nogueira no interior — sublinha o equilíbrio entre a arquitectura, a atmosfera e o enquadramento natural.





























