
-
Arquitetos: Estúdio Nimo
- Área: 48 m²
- Ano: 2025
-
Fotografias:Renata D’Almeida

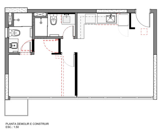
Descrição enviada pela equipe de projeto. Projeto minimalista garante elegância e funcionalidade para Apartamento de 48 m² no eixo empresarial de São Paulo. Projetado pelo Estúdio Nimo, o imóvel passou por uma reformulação que ampliou o quarto e integrou as áreas sociais, equilibrando funcionalidade e privacidade para o morador. A combinação de elementos industriais e artesanais resulta em um lar acolhedor e com personalidade.


Localizado no bairro Chácara Santo Antônio, em São Paulo, próximo à Berrini, o Apartamento Berrini foi pensado para um jovem executivo que equilibra sua rotina entre momentos de lazer e trabalho. Idealizado pelo Estúdio NIMO, fundado pelas arquitetas Luiza Garcia e Pietra Paes Barreto, o projeto de 48 m² une características industriais a toques rústicos, com o objetivo de garantir elegância e aconchego simultaneamente. O espaço foi planejado com uma base neutra e sólida, proporcionando ambientes versáteis e atemporais.

Nele, a integração das áreas sociais cria a sensação de amplitude e leveza, estabelecendo um cenário ideal tanto para o relaxamento quanto para a socialização. Demarcadas pela definição de layout dos móveis, as salas de TV, jantar e cozinha, permitem fluidez e comunicação constante entre os ambientes, garantindo a funcionalidade necessária.

"Atendendo à necessidade do cliente de usar o apartamento tanto para o trabalho quanto para receber amigos no seu tempo livre, o projeto foi pensado para o convívio. Por isso, buscamos criar espaços amplos e acolhedores, além de definir uma área específica para o home office, com a ampliação do quarto, que proporciona a privacidade de ambos os ambientes" - Pietra.

Os espaços são caracterizados por materiais que remetem ao estilo industrial e moderno, como o concreto das estruturas e a madeira ebanizada. A sala de TV, com tubulação aparente e marcenaria planejada, conta com um sofá claro e espaçoso, oferecendo o conforto desejado. Elementos texturizados e artesanais completam o espaço, tornando-o leve e aconchegante.

Um banco de concreto, localizado abaixo das amplas janelas que permite a entrada abundante de luz natural, conecta os espaços de estar e jantar, além de oferecer áreas de armazenamento que podem ser aproveitadas por eventuais visitas. Ainda em sintonia com a linguagem dos demais ambientes, a cozinha, situada ao lado, é marcada pelo revestimento cerâmico verde que percorre todo o seu perímetro, agregando beleza e personalidade. Elementos decorativos adicionam toques de brasilidade e ancestralidade, suavizando a estética sóbria do espaço.

A fim de proporcionar unidade para o apartamento, o lavabo recebe os mesmos materiais da cozinha: pastilha nas paredes e bancada em granito, tornando-se bonito e funcional. A suíte, alinhada à estética do apartamento, foi ampliada durante a reforma para acomodar um espaço dedicado ao home office, essencial para o morador. Compacta e funcional, destaca-se pelos tons claros e pela escrivaninha de madeira, que acrescenta aconchego e elegância.







