
-
Arquitetos: JAWSARCHITECTS
- Área: 7602 m²
- Ano: 2024
-
Fotografias:Natasha Mulhall

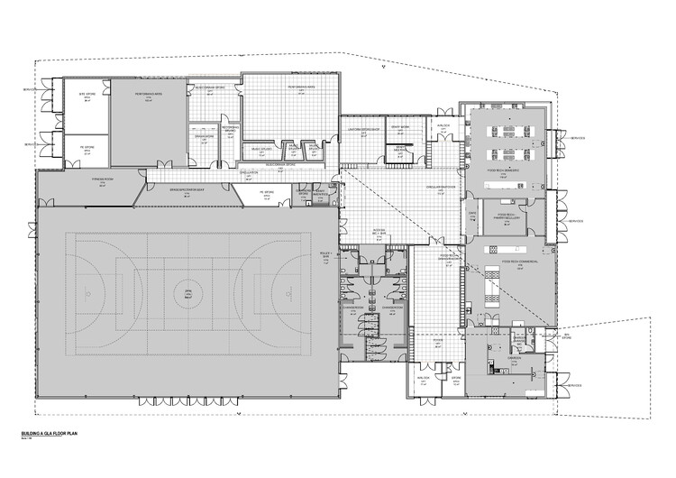
Descrição enviada pela equipe de projeto. Atendendo até 600 alunos de 7 a 12 anos, a Brighton High School é um ambiente educacional aspiracional e inclusivo, com ênfase em espaços de aprendizagem contemporâneos, tanto internos quanto externos. O Rio Jordan / Kutalayna é uma característica familiar dessa paisagem, com o vale proporcionando uma forte conexão geográfica entre a escola secundária e as escolas primárias que a alimentam rio acima.

Kutalayna tem sido uma fronteira informal para os Palawa, Aborígenes da Tasmânia, por milhares de anos, distinguindo as terras do povo do Grande Rio das do povo da Baía das Ostras, com ambos os grupos se reunindo aqui regularmente para ocasiões especiais. Inspirado no uso tradicional do local, o plano geral organiza-se em dois volumes interdependentes, orientados para o interior de modo a abraçar um pátio central de encontro. Esse gesto espacial cria uma relação de pertencimento e uma conexão profunda com o lugar.

Essa proposta abre espaço para que os alunos desenvolvam uma apreciação pela história Palawa da região, ao mesmo tempo em que organiza um layout eficiente, capaz de sustentar uma estrutura pedagógica contemporânea. No lado norte, a escola estabelece uma borda de caráter cívico, marcada por volumes voltados a usos comunitários. As construções, todas térreas e de escala doméstica, oferecem uma introdução familiar e acolhedora ao conjunto.


As "Comunidades de Aprendizagem" mais permeáveis moldam a borda sul, com espaços de ensino estruturados no perímetro conectando-se a áreas ajardinadas como um meio de contribuir positivamente para o bem-estar geral e os resultados dos alunos.


A "Rua de Aprendizagem" central forma uma divisão natural, proporcionando um espaço paisagístico imersivo e sinuoso que atende a reuniões escolares, aprendizagem informal, contemplação tranquila e recreação passiva. Expandindo a narrativa de design, a geomorfologia da terra ocupada pelos dois grupos aborígenes é referenciada na forma, massa e textura das edificações. O trabalho em tijolos padronizados ajuda a definir uma linguagem visual coesa, com variações de cor distinguindo ambientes costeiros e de planalto em cada lado da "Rua".

Uma sequência de telhados dobrados se inspira na topografia das colinas ao redor, suas camadas servindo como uma metáfora das árvores e da vegetação do sub-bosque. Janelas destacadas separam os planos dos telhados para criar espaços de alturas variadas, adaptados para atender necessidades pedagógicas específicas e permitir que a luz natural entre nos espaços de colaboração central.

Os telhados rebaixados introduzem uma escala humana, projetando-se para além das fachadas e formando passagens cobertas ao longo da “Rua de Aprendizagem”. Esse espaço central funciona como um lugar de encontro, onde o compartilhamento de conhecimento e a construção de amizades acontecem em um ambiente de respeito mútuo e de conexão com o território.





















