Casa Ostra / STUDIO PIPPA

Casa Ostra / STUDIO PIPPA - Fotografia de Interiores, ConcretoCasa Ostra / STUDIO PIPPA - Fotografia de Interiores, Sala de Estar, Madeira, Sofá, CadeiraCasa Ostra / STUDIO PIPPA - Fotografia de Interiores, Sala de Jantar, Iluminação, Mesa, Cadeira, VidroCasa Ostra / STUDIO PIPPA - Fotografia de Interiores, Sala de Estar, Sofá, Madeira, Mesa, Iluminação, CadeiraCasa Ostra / STUDIO PIPPA - Mais Imagens+ 18

Brasília, Brasil
  • Arquitetos: STUDIO PIPPA
  • Área Área deste projeto de arquitetura Área:  630
  • Ano Ano de conclusão deste projeto de arquitetura Ano:  2024
  • Fotógrafo
  • Fabricantes Marcas com produtos usados neste projeto de arquitetura
    Fabricantes:  Docol, Mareli Esquadrias, Marmoraria Alvorada, Paulete
  • Categoria: Casas
  • Equipe De Projeto: Priscila Gabriel, Virgínia Castro, Cecília Graf, Bárbara Sant'Anna
  • Arquiteta Líder: Priscila Gabriel
  • Paisagismo: Ana Paula Roseo Paisaigismo
  • Engenharia & Consultoria > Civil: RHC Engenharia
  • Cidade: Brasília
  • País: Brasil
Mais informaçõesMenos informações
Casa Ostra / STUDIO PIPPA - Fotografia de Interiores, Concreto
© Larisa Sad - Urban Sadness

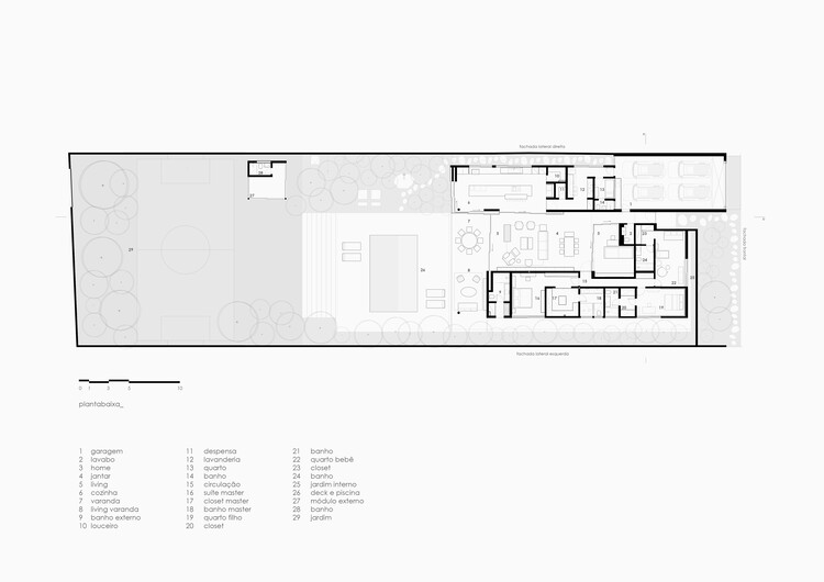
Descrição enviada pela equipe de projeto. Localizado em uma área residencial em Brasília, Ostra é um projeto de reforma concebido para acolher o início de uma nova família. O desejo dos clientes por espaços flexíveis e integrados nortearam o exercício projetual.

Content Loader

Galeria do Projeto

Ver tudoMostrar menos
Sobre este escritório
Cita: "Casa Ostra / STUDIO PIPPA" 10 Ago 2025. ArchDaily Brasil. Acessado . <https://www.archdaily.com.br/br/1032519/casa-ostra-studio-pippa> ISSN 0719-8906

¡Você seguiu sua primeira conta!

Você sabia?

Agora você receberá atualizações das contas que você segue! Siga seus autores, escritórios, usuários favoritos e personalize seu stream.