

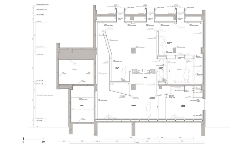
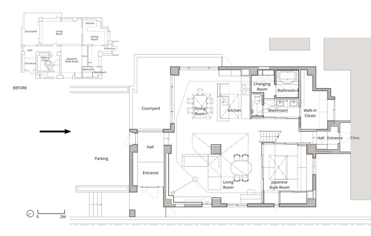
Descrição enviada pela equipe de projeto. Este projeto contempla a renovação de uma casa com mais de 40 anos em uma cidade japonesa. Originalmente construída como uma estrutura de concreto armado de três andares sob códigos sísmicos ultrapassados, a residência era grande demais para uma família, com muitos cômodos não utilizados e com pouco isolamento. Também era mal iluminada devido à proximidade de uma clínica médica. A renovação visou adaptar a edificação à vida contemporânea através de: 1) introdução de vazios verticais e claraboias para trazer luz natural ao térreo, 2) melhoria da isolação do envoltório para reduzir cargas térmicas e 3) consolidação de cômodos essenciais no primeiro e segundo andar, transformando efetivamente a casa em uma residência de dois andares.






















