
-
Arquitetos: Ian Moore Architects
- Área: 110 m²
- Ano: 2024
-
Fotografias:Clinton Weaver

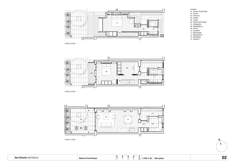
Descrição enviada pela equipe de projeto. Originalmente uma das quatro casas geminadas idênticas construídas em arenito em 1863, a residência era acessada por um longo jardim frontal a partir da Victoria Street. Em 1980, a metade frontal do terreno foi desmembrada, e uma nova edificação foi construída na frente voltada para a Victoria Street, restando apenas um pequeno trecho do jardim original, que passou a funcionar como pátio nos fundos. A entrada principal foi, então, transferida para a rua dos fundos. Em uma etapa posterior, foi adicionada uma edícula em alvenaria de dois pavimentos, onde foram instalados a cozinha e um banheiro.

A proposta era criar uma entrada mais apropriada para a casa, abrir os espaços de convivência para o pátio nos fundos, ampliar o sótão existente e adicionar um banheiro extra para atender esse novo pavimento. Localizada em uma Área de Conservação do Patrimônio, a residência exigia aprovação do Conselho local, que solicitou a preservação da edícula posterior — já com mais de 100 anos — e exigiu que todas as novas intervenções fossem claramente distintas da construção original.





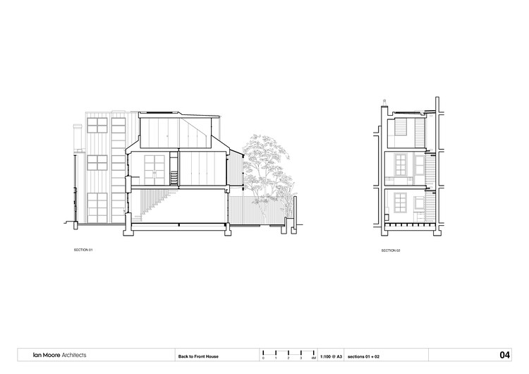
As novas adições se manifestam como uma torre de três pavimentos revestida em aço, com caixilhos metálicos e proteções solares. O arenito original foi preservado, assim como as esquadrias e portas de madeira. No centro da intervenção contemporânea, uma escada em aço e madeira sob um grande domus permite a entrada profunda de luz natural em um interior antes escuro e fechado.



Uma ligação envidraçada de três pavimentos separa a nova torre de aço da construção original. A conexão entre antigo e novo se dá por meio de aberturas já existentes, com o arenito original mantido exposto e emoldurado como portais internos.




O piso original da casa foi substituído por tábuas de carvalho, enquanto os banheiros, a cozinha e os pátios receberam grandes placas de pedra Travertino cinza — mais uma vez utilizando os materiais para marcar a diferença entre o novo e o antigo. Um dos acréscimos mais notáveis é o portal de aço com 5,2 metros de altura voltado para a viela dos fundos, com um portão de acesso na parte inferior e uma tela de privacidade na parte superior.


A casa não possui ar-condicionado e aposta na ventilação cruzada natural, ventiladores de teto, sombreamento em todas as aberturas, cobertura e paredes com isolamento térmico reforçado, aquecimento solar de água, iluminação LED, eletrodomésticos totalmente elétricos e aquecimento elétrico por piso radiante.
















