
-
Arquitetos: José Adrião Arquitetos
- Área: 312 m²
- Ano: 2024
-
Fotografias:Francisco Nogueira

Descrição enviada pela equipe de projeto. A casa está localizada numa planície a poucos quilómetros da costa atlântica portuguesa. Esta zona tem a particularidade de ter um povoamento disperso em lotes de terreno de dimensão variável. Na sua génese tinha uma atividade predominantemente florestal/agrícola.

A quinta das Oliveiras tem caraterísticas semelhantes. É constituído por uma pequena área de cultivo, um pinhal e um conjunto de edifícios com escassa qualidade construtiva: uma habitação, anexos e telheiros de apoio.

Os diferentes instrumentos de gestão territorial em vigor determinaram as regras base do projeto. As edificações existentes só poderiam ser demolidas ou substituídas. No caso da substituição, a nova construção deveria manter o perímetro de implantação da construção preexistente. Seria possível, também de acordo com a mesma legislação, a construção de um piso em cave e um acréscimo de 20% da área de implantação num piso superior.

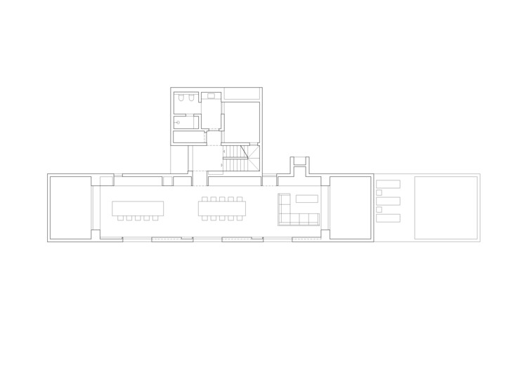
A configuração da nova casa é reflexo do determinado pelos instrumentos de gestão urbanística. Os espaços interiores adaptaram-se à volumetria possível e o seu desenho procurou a luz e a ventilação natural, como um fator determinante para criação de conforto.

A nova casa estabelece uma relação total com o terreno a partir das áreas sociais e é composta por dois volumes adossados entre si. Num volume baixo e comprido está a cozinha, a zona de refeições e a zona de estar num espaço aberto. Outro volume mais alto e cúbico contém as escadas que dão acesso ao quarto no piso superior e a uma zona de apoio na cave.

A zona de cave é iluminada e ventilada por três pátios situados a norte, a sul e a nascente.












