
-
Arquitetos: João Marujo + Orlando Naj
- Área: 140 m²
- Ano: 2024
-
Fotografias:Lela Leme
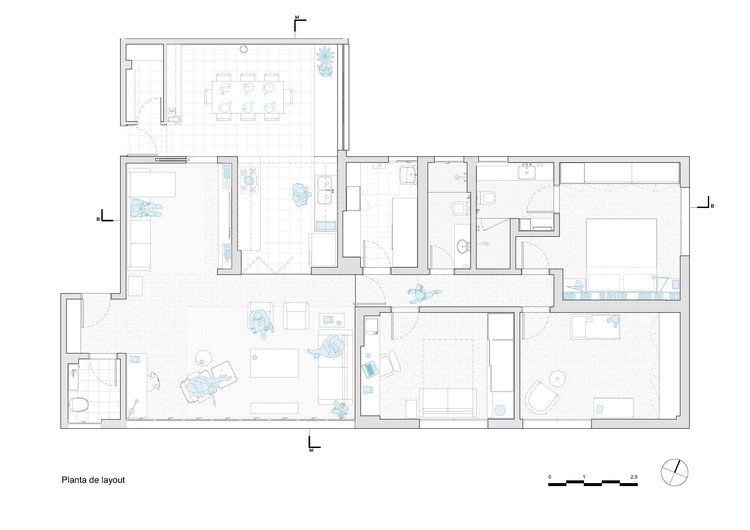
Descrição enviada pela equipe de projeto. O projeto de reforma deste apartamento teve como partido conferir maior amplitude à planta original da década de 1970, superando algumas deficiências com pequenas intervenções. A baixa incidência de luz natural e a demanda por ampliação das áreas de estar induziram o projeto a um rearranjo dos programas cozinha-lavanderia-sala e a conexão entre eles.

Nessa mudança, a lavanderia foi deslocada para o bloco íntimo da casa, permitindo que a antiga área de serviço fosse transformada em sala de jantar e que usufruísse da melhor vista, antes renegada pelo elemento vazado.

A abertura de uma porta camarão com folhas de vidro permitiu uma nova integração entre cozinha e sala, tanto visual como na circulação. O ciclo se completa com outra abertura entre sala de tv e sala de jantar, dando maior liberdade de fluxo.



Nas áreas privativas do apartamento, com exceção da nova lavanderia, a planta original foi majoritariamente preservada; a suíte principal foi reorganizada internamente para acomodar a ampliação do banheiro e um dos quartos passou a ser utilizado como escritório. De forma geral, nessas áreas, o projeto concentrou-se no desenho de marcenaria na busca por coerência e mais funcionalidade do conjunto.


Por fim, a linguagem minimalista na escolha dos novos revestimentos buscou tanto dialogar com o piso existente de taco em ipê rajado - agora restaurado -, como ressaltar, por contraste com as paredes brancas, os objetos que contam a história dos novos moradores e que dão vida à nova composição visual.





























