Casa K/T / tombow architects

Casa K/T / tombow architects - Fotografia de Interiores, Cozinha, Madeira, Vidro, CadeiraCasa K/T / tombow architects - Imagem 3 de 19Casa K/T / tombow architects - Imagem 4 de 19Casa K/T / tombow architects - Fotografia de Exterior, Janela, Balcão, EscadaCasa K/T / tombow architects - Mais Imagens+ 14

  • Categoria: Casas, Renovação
  • Arquiteto Responsável: Yusuke Kobayashi
  • Engenharia E Consultoria Estrutural: oha
  • Construtora Geral: Yamauchi Construction Firm
  • País: Japão
Mais informaçõesMenos informações
Casa K/T / tombow architects - Fotografia de Exterior, Janela, Balcão, Escada
© Norihito Yamauchi

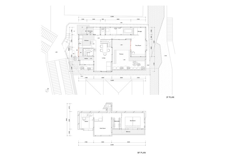
Descrição enviada pela equipe de projeto. Este é um projeto de renovação de uma casa de 45 anos situada em um terreno inclinado nas Colinas de Tama, Japão. Esta renovação maximizará o apelo espacial do volume existente sem alterar a forma e o layout geral da edificação. O volume será desenvolvido para fornecer espaço de estar para uma família de quatro pessoas e o estúdio do designer. 

Content Loader

Galeria do Projeto

Ver tudoMostrar menos
Sobre este escritório
Cita: "Casa K/T / tombow architects" [House K/T / tombow architects] 04 Mai 2025. ArchDaily Brasil. Acessado . <https://www.archdaily.com.br/br/1029591/casa-k-t-tombow-architects> ISSN 0719-8906

¡Você seguiu sua primeira conta!

Você sabia?

Agora você receberá atualizações das contas que você segue! Siga seus autores, escritórios, usuários favoritos e personalize seu stream.