
-
Arquitetos: Luiz Solano
- Área: 80 m²
-
Fotografias:Camila Alba

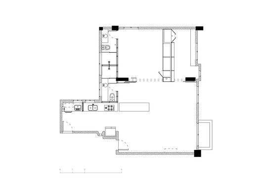
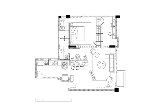
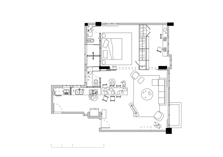
Descrição enviada pela equipe de projeto. O projeto para o Apartamento III consiste na reorganização das áreas molhadas que, antes dispersas e conectadas por corredores, agora são concentradas e acessadas diretamente. Todos os corredores existentes foram suprimidos e os banheiros passaram a ocupar toda a área da lavanderia que, por sua vez, foi compactada na parte de trás da cozinha.




















