Residência à Beira do Lago / Alexandre Chaguri Arquitetura

Residência à Beira do Lago / Alexandre Chaguri Arquitetura - Imagem 2 de 43Residência à Beira do Lago / Alexandre Chaguri Arquitetura - Imagem 3 de 43Residência à Beira do Lago / Alexandre Chaguri Arquitetura - Imagem 4 de 43Residência à Beira do Lago / Alexandre Chaguri Arquitetura - Imagem 5 de 43Residência à Beira do Lago / Alexandre Chaguri Arquitetura - Mais Imagens+ 38

  • Área Área deste projeto de arquitetura Área:  801
  • Ano Ano de conclusão deste projeto de arquitetura Ano:  2021
  • Fotógrafo
    Fotografias:Favaro Jr.
  • Fabricantes Marcas com produtos usados neste projeto de arquitetura
    Fabricantes:  ArqLuce, Baú+, Firmato Più Esclusivo, Tempervale Esquadrias de Alumínio
  • Categoria: Casas
  • Arquiteto Responsável: Alexandre Chaguri
  • Interiores: Sonne Müller Arquitetos
  • Paisagismo: Silvio Moreira Sanchez
  • País: Brasil
Mais informaçõesMenos informações
Residência à Beira do Lago / Alexandre Chaguri Arquitetura - Fotografia de Interiores, Sala de Estar, Madeira, Sofá, Mesa, Cadeira
© Favaro Jr.

Descrição enviada pela equipe de projeto. Projetada para um jovem casal com filho, esta residência de veraneio no interior de São Paulo traduz equilíbrio e sofisticação em sua essência. Implantada em um condomínio voltado para o lago, em uma área dedicada ao triathlon, a casa foi concebida para integrar-se plenamente à paisagem, proporcionando momentos de contemplação e convívio.

Residência à Beira do Lago / Alexandre Chaguri Arquitetura - Imagem 2 de 43
© Favaro Jr.

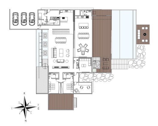
Transparência e Integração como Premissas - Desde o primeiro traço, o projeto foi guiado pelo desejo dos clientes de ter uma casa aberta para a paisagem, com uma área social ampla e fluida. Para isso, optamos por um pé-direito alto e uma fachada totalmente aberta, permitindo que a iluminação natural e o entorno façam parte do cotidiano da residência. Para equilibrar essa transparência e garantir privacidade, introduzimos um elemento metálico vazado, que suaviza a incidência solar e filtra visibilidade. Outro destaque são as duas lareiras estrategicamente posicionadas, visíveis já quando chegamos na frente da casa, reforçando a atmosfera acolhedora do projeto. A casa se divide em dois pavimentos. No térreo, os espaços de convivência incluem sala de estar, jantar, home theater, cozinha gourmet, lavabo, academia e escritório. Além disso, duas suítes de hóspedes contam com gardens privativos e spas, oferecendo conforto e exclusividade aos visitantes. Já no pavimento superior, encontram-se quatro suítes, incluindo a master, que dispõe de uma varanda com spa privativo.

Residência à Beira do Lago / Alexandre Chaguri Arquitetura - Imagem 3 de 43
© Favaro Jr.

Minimalismo Aquecido pela Natureza - Seguindo a identidade do escritório, o projeto valoriza o minimalismo e a amplitude dos espaços, onde os vazios são protagonistas. O projeto de interiores, desenvolvido em paralelo, reforça essa premissa ao destacar a arquitetura e o mobiliário de forma equilibrada e precisa. Obras assinadas foram cuidadosamente distribuídas, agregando personalidade e sofisticação aos ambientes. Para garantir que a arquitetura moderna mantivesse um diálogo harmonioso com a natureza, optamos por uma paleta de materiais naturais e atemporais. A residência é revestida em travertino romano, pedra e madeira, elementos que trazem calor e texturas orgânicas aos espaços. O vidro, amplamente utilizado, reforça a conexão entre interior e exterior, permitindo que a iluminação natural permeie todos os ambientes.

Residência à Beira do Lago / Alexandre Chaguri Arquitetura - Fotografia de Interiores, Escada, Madeira
© Favaro Jr.

O Refúgio à Beira do Lago - A área externa, voltada para a lagoa, foi desenhada para ser uma extensão da casa. A piscina se integra ao paisagismo, enquanto a sauna oferece um espaço de relaxamento com vista privilegiada. A presença do lago ao fundo não apenas valoriza a residência, mas também reforça a proposta de um refúgio voltado ao bem-estar, onde arquitetura e natureza coexistem em perfeita harmonia.

Residência à Beira do Lago / Alexandre Chaguri Arquitetura - Imagem 5 de 43
© Favaro Jr.

Galeria do Projeto

Ver tudoMostrar menos
Sobre este escritório
Cita: "Residência à Beira do Lago / Alexandre Chaguri Arquitetura" 04 Mai 2025. ArchDaily Brasil. Acessado . <https://www.archdaily.com.br/br/1029466/residencia-a-beira-do-lago-alexandre-chaguri-arquitetura> ISSN 0719-8906

¡Você seguiu sua primeira conta!

Você sabia?

Agora você receberá atualizações das contas que você segue! Siga seus autores, escritórios, usuários favoritos e personalize seu stream.