
-
Arquitetos: Sandra Sayeg Tranchesi Arquitetura
- Área: 425 m²
- Ano: 2021
-
Fotografias:Tuca Reinés

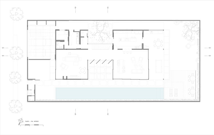
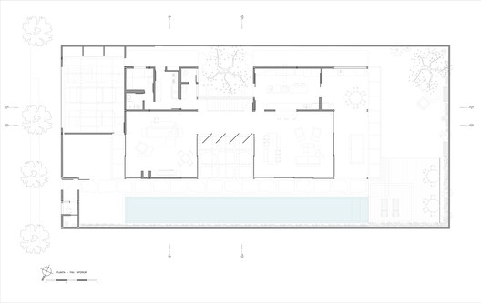
Descrição enviada pela equipe de projeto. Projetada pela arquiteta Sandra Sayeg, a Residência VH materializa o desejo de um jovem casal por uma casa acolhedora, funcional e conectada à natureza. Inicialmente concebida para ser ampliada ao longo dos anos, a decisão de executar o projeto em sua totalidade logo no início da obra garantiu maior praticidade construtiva e conforto aos futuros moradores. A estrutura metálica e o sistema steel deck foram escolhidos não apenas por sua agilidade e precisão construtiva, mas também pelo impacto estético, conferindo leveza à composição arquitetônica. A residência está implantada em formato de "H", solução que possibilita que todos os ambientes se abram para o jardim, promovendo uma relação constante entre interior e exterior. A cozinha, um dos espaços centrais da casa, reflete o estilo de vida dos clientes: ela se conecta diretamente ao estar, ao jantar, à churrasqueira e ao jardim, com horta. Já a escada que leva ao pavimento superior é aproveitada para acomodar uma adega translúcida, que permite ver através, proporcionando mais um eixo de permeabilidade visual. Todo esse espaço fluido e integrado foi pensado para valorizar a convivência e receber amigos e familiares – uma prioridade para os moradores.



A materialidade desempenha um papel essencial na construção da identidade do projeto. Optou-se por uma paleta concisa e natural, onde a madeira desempenha um papel de destaque. O forro único de madeira Tauari proporciona continuidade e amplitude, ao mesmo tempo que traz aconchego. No térreo, a parede em concreto pigmentado e o piso de microcimento trazem unidade visual e reforçam a linguagem contemporânea da residência. Já os muxarabis de madeira Cumaru, contrastando com a estrutura metálica, filtram a luz e oferecem um equilíbrio entre privacidade e permeabilidade visual. Por fim, como cobertura externa, os pergolados metálicos possuem trechos cobertos com vidro e palha, criando um jogo dinâmico de luz e sombra. Os espaços foram desenhados para garantir funcionalidade sem abrir mão da sensação de refúgio. As quatro suítes estão distribuídas no pavimento superior, incluindo um quarto planejado para a primeira filha do casal. A circulação foi otimizada para criar espaços de convivência dinâmicos, como é o caso do escritório no piso superior, que aproveita um espaço de circulação que poderia ser subutilizado. Os banheiros seguem a mesma lógica de integração e racionalidade, com soluções como box em vidro jateado, que garante privacidade sem comprometer a amplitude dos espaços.

A área externa é um desdobramento natural da arquitetura. O jardim tem um paisagismo exuberante e complementa a presença marcante da piscina, que foi posicionada lateralmente para garantir vista a partir de diversos pontos da casa. O terraço se insere nesse contexto como uma extensão da área social, reforçando a fluidez entre os ambientes. A escolha do mobiliário seguiu uma abordagem orgânica, permitindo que os próprios moradores, em parceria com o Bossa Arquitetura, selecionassem peças que traduzissem sua personalidade. A arquitetura ditou a disposição do layout, iluminação e acabamentos, garantindo que os interiores refletissem a essência do projeto sem excessos. A Residência VH sintetiza a prática arquitetônica de Sandra Sayeg, pautada pela integração entre espaço e paisagem, pelo cuidado na escolha dos materiais e pelo olhar atento à vivência de seus ocupantes. Cada detalhe foi concebido para proporcionar conforto, funcionalidade e uma conexão fluida entre casa e natureza.



























