
-
Arquitetos: KC Design Studio
- Área: 159 m²
- Ano: 2024
-
Fotografias:Yi-Hsien Lee

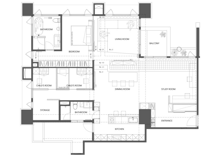
Descrição enviada pela equipe de projeto. O proprietário valoriza a interação familiar e deseja criar uma atmosfera acolhedora por meio do design. Assim, o espaço público foi maximizado para criar um ambiente aberto e confortável, compartilhado por todos os membros da família.




O proprietário adora uma sala de estar rebaixada. Sobre uma base de laje plana, o design diferencia habilidosamente as funções através de elevações parciais e sobreposições em camadas, que se estendem para a cabine de jantar e a cama de dia do escritório. A área rebaixada define um espaço exclusivo, enquanto o piso elevado divide naturalmente a área, atendendo às diversas necessidades do cotidiano.

Em termos de materiais, a delicada textura do cimento serve como base, enquanto as expressões ricas da madeira envelhecida criam um contraste marcante, assemelhando-se a uma grande pintura no espaço. Quanto à fonte de luz, a translucidez dos tijolos de vidro suaviza a luz natural, criando uma atmosfera aberta e tranquila, conferindo ao ambiente uma rica cadência de vida.


Por meio da técnica de deixar o espaço livre, a visão é permitida a se mover com liberdade. Os pilares de madeira estendem a sensação geral do espaço. Ao sobrepor e entrelaçar materiais, luz e camadas, cria-se uma atmosfera relaxante e acolhedora, permitindo que as pessoas retornem à pureza e ao equilíbrio no agito da cidade.


















