
-
Arquitetos: H2C Arquitetura
- Área: 80 m²
- Ano: 2024
-
Fotografias:Ricardo Faiani
-
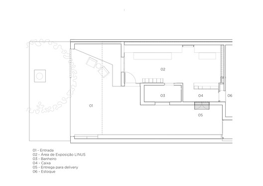
Fabricantes: Defragoso, Durafloor, Olver do Brasil, Pierini

Descrição enviada pela equipe de projeto. O projeto da Loja LINUS é o resultado de uma reforma bem-sucedida de uma casa térrea em um pequeno lote remanescente entre dois grandes prédios em Pinheiros.














