
-
Arquitetos: TWO Arquitetura
- Área: 1490 m²
- Ano: 2024
-
Fotografias:Evelyn Muller

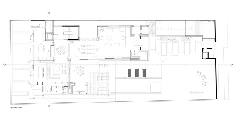
Descrição enviada pela equipe de projeto. O projeto da Casa Europa nasce a partir de um briefing que prioriza a construção da máxima área possível. As solicitações do cliente, apaixonado pela culinária, incluem multipontos de cozinha que atendem às suas necessidades de receber amigos e familiares de maneira acolhedora e sofisticada.




























