
-
Arquitetos: Vapor arquitetura
- Área: 95 m²
- Ano: 2023
-
Fotografias:Arthur Duarte

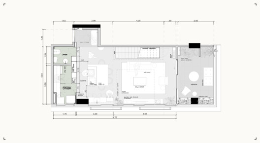
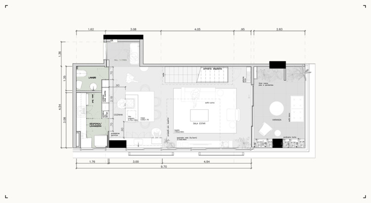
Descrição enviada pela equipe de projeto. O projeto consiste na reforma completa de um apartamento duplex de 95 metros quadrados, localizado em um edifício novo no bairro de Cerqueira César, em São Paulo. O apartamento foi entregue pela construtora no osso, sem o pavimento superior construído e com um pé-direito duplo livre, o que proporcionou uma liberdade de projeto para explorar o vazio e a relação entre os pavimentos, a escada e a passarela em diálogo com o pé-direito duplo. Destinado a um casal jovem sem filhos, o apartamento foi concebido para ser um espaço com poucos elementos, mas ao mesmo tempo aconchegante e com personalidade. Ele possui uma cozinha integrada à sala e à varanda, um dormitório com banheiro, um closet generoso e um escritório.






















