
-
Arquitetos: Monoblock; Monoblock
- Área: 7050 m²
- Ano: 2013
-
Fotografias:Javier Agustin Rojas, Horacio Volpato

Descrição enviada pela equipe de projeto. Marco
Em um terreno de frente para o mar na costa da cidade de Mar del Plata se propõe a construção de um novo programa cultural de grande envergadura para a cidade. Nos permite imaginar a centralidade, forçando a presença de um marco para as áreas residências, representando assim a consolidação metropolitana de Mar del Plata. A proposta, neste sentido, reivindica atenção através de um edifício de forte caráter público com um grande porto seco para o mar, e de uma materialidade nua e robusta em seu volume construído que emoldura uma praça de acesso e exposição. O museu, como pedras de um paredão quebra-mar enfrenta o mar que observa a cidade de longe. A escala do projeto é uma visão a cerca da própria cidade, de seu tamanho, sua vitalidade, e do esforço levado a cabo para posiciona-la como uma cidade com propostas culturais em nível internacional. O entorno urbano como um toda, é natural, cremos que nos exige pensar o novo museu em uma escala de uma grande metrópole.

Museu
Com esta finalidade se pensou um museu que pudesse abrigar mostras de arte de grande prestígio, e em função disso se tomou a decisão de maximizar um ambiente de sala para ser o mais espaçoso, luminoso e flexível, que em sua configuração ofereça uma riqueza espacial que permita imaginar este edifício como uma clara referência na atividade cultural de toda a cidade e arredores.

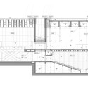
Assim as salas foram posicionadas em uma planta alta para aproveitar a grande espacialidade da qual dispõe e da possibilidade de iluminá-las zenitalmente, configurando um grande volume diáfano como âmbito contemporâneo de exposição. Em sua ampliação, o museu propõe uma clara separação de tipologia de uso, mantendo em planta alta a tipologia de sala de iluminação zenital para exposições visuais, e, no piso térreo, a incorporação de grandes salas "galpão" flexíveis, preparadas para grandes espetáculos massivos com acessos diferenciados pela parte externa, ou salas menores isoladas para distintas mostras audiovisuais.

Escala pedonal
Todo o programa que não é Sala de exposição se encontra no piso térreo, em direta relação coma calçada, os acessos, a escala pedonal e do bairro de seu entorno. Esta decisão permite pensar uma planta baixa aberta e transparente em função do programa que abriga, enquanto que a planta do piso superior é predominantemente sólida.

Módulo
Esta busca de uma grande espacialidade interior e uma volumetria marcante a partir do exterior está em contraste com a ideia de máxima flexibilidade e racionalidade construtiva de um edifício celular.

Um sistema de módulos estruturais independentes, que garantem que cada um destes esteja acabado em si mesmo, permitindo inaugurar o edifício somente com 2/7 do total construível. Um edifício de crescimento modular, que aporta grande flexibilidade ao promotor por dispor de grandes variantes de conclusão e também podendo variar as etapas planificadas por outras de outro caráter, ao tratar-se de um edifício de estrutura funcional aberta.
Cada um desses módulos correspondem a cada uma das salas da primeira etapa. Quatro módulos cúbicos de estrutura e fechamento de concreto cru configuram cada um dos módulos. Um módulo central com o mesmo tratamento espacial funciona como um distribuidor que dá em todas as salas, permite uma máxima configuração de montagens de exposições, onde facilmente se pode organizar uma exposição inteira ocupando a totalidade das salas, como uma montagem diferenciada. Este espaço "panóptico" se converte em um componente central do projeto ao permitir multiplicar as relações funcionais como espaciais, permitindo pensar a área de salas como um único grande lugar.

Materialidade
Estrutural e construtivamente independentes, estes corpos de concreto aproveitam a inércia que geram os planos cegos das salas para conseguir balanços e grandes vergas formando um sistema estrutural de poucas divisões de apoio, reforçando a ideia da planta baixa livre e pública aberta para a cidade. Esta decisão construtiva resulta em uma manutenção muito baixa ao longo do tempo de vida do edifício.

Os espaços intersticiais entre as caixas são capitalizadas como um espaço de exposição com uma qualidade ambiental inesperada, ao proporcionar fugas de visuais para o exterior através de um sistema de passarelas metálicas e coberturas e planos envidraçados para o exterior. Estas circulações intersticiais proporcionam uma grande profundidade aos espaços e as salas.

O projeto busca uma intervenção diretamente sobre a costa de maneira contínua das características de praça pública, enfatizando sua perspectiva como posição de marco urbano.
A espacialidade, flexibilidade e qualidade na forma em que a arte contemporânea se expõe se consegue mediante um sistema modular de grandes caixas de imagem e funcionalidade contundente.
.jpg?1389753980)






















.jpg?1389753979)
.jpg?1389753991)
.jpg?1389753980)
.jpg?1389754012)
.jpg?1389754001)
.jpg?1389753993)
.jpg?1389754015)
.jpg?1389754004)
.jpg?1389754044)
.jpg?1389754026)
.jpg?1389754027)
.jpg?1389754038)
.jpg?1389753956)
.jpg?1389753955)
.jpg?1389753965)