
-
Arquitetos: collectief mars
- Área: 150 m²
- Ano: 2019
-
Fotografias:Katoo Peeters
-
Fabricantes: Adobe, AutoDesk, PU-flooring, Reynaers

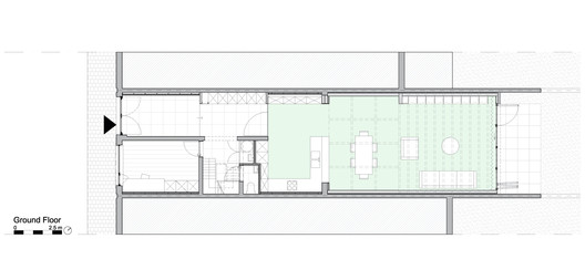
Descrição enviada pela equipe de projeto. Por trás de uma fachada modesta se esconde uma explosão de luz e vivacidade. Íntimo, mas generoso, o amplo hall de entrada funciona como um emaranhado de espaços de serviço como banheiro, depósito e escritório conectando as funções diurnas com as noturnas.




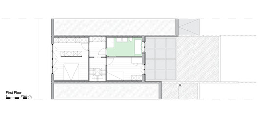
A transição da vida pública para a privada é, posteriormente, mediada por uma porta de aço proeminente. Atrás dessa porta, "lugares" como sala de estar, cozinha e sala de jantar são sugeridos por variações na altura de vedação, materialidade e elaboração arquitetônica.

Uma moldura de madeira envidraçada enfatiza o lugar onde a mesa de jantar pertence. Longas vigas de madeira e um armário de parede encenam a área de estar.















