
- Área: 2100 m²
- Ano: 2012
-
Fotografias:Joana França
-
Fabricantes: Deca, Ibratin Tintas e Texturas, Laminam, Rissi Fachadas e Esquadrias, Rissi Fachadas e Esquadrias, vidroprime, vidroprime

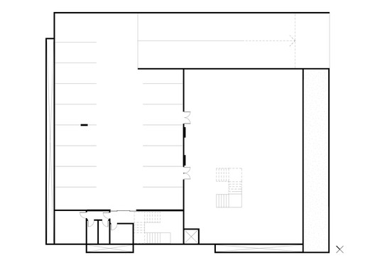
Descrição enviada pela equipe de projeto. Certificada com o selo de eficiência ambiental LEED Platinum na categoria “Core and Shell”, essa edificação na QI 15 do Lago Sul ocupa o último lote corporativo localizado nesse nobre setor de Brasília. Soma 2100 m2 distribuídos em térreo, pavimento superior e um subsolo.


O aspecto formalista e ousado desse bloco se deu a partir da interpretação de duas demandas fundamentais do programa: Uma imponente sala de reuniões e uma generosa varanda. Ambas voltadas pra o Lago Paranoá. As demais áreas de trabalho foram definidas de modo a permitir versatilidade de ocupação, e agradáveis enquadramentos do bairro. O acesso se dá por um pátio de convivência e uso comum voltado para a rua.


A “epiderme” escura é uma fachada ventilada com painéis LAMINAM. Esse material de alto desempenho térmico é auto-limpante e responde às premissas de baixo consumo e manutenção. Os jardins foram igualmente desenvolvidos visando baixo consumo de água, sombreamento e utilização de espécimes endêmicas de Cerrado. A edificação dispõe ainda de sistema independente para armazenamento e reuso de águas cinza, além de painéis fotovoltaicos para geração de energia elétrica e automação predial.


















