
-
Arquitetos: Esquadra Arquitetos
- Área: 400 m²
- Ano: 2024
-
Fotografias:Joana França

Descrição enviada pela equipe de projeto. A Casa Cidu foi concebida a partir da ideia de aproveitar ao máximo o perímetro verde do terreno, situado no Lago Norte. O principal desejo dos proprietários era a valorização da área de lazer localizada nos fundos do lote. A solução foi a criação de um espaço integrado à natureza, que favorecesse o convívio familiar e social, com piscina, área de fogueira e jardim.

A ideia na concepção do projeto foi fazer com que a casa mantivesse uma relação discreta com a rua. A proposta buscou preservar a harmonia com a escala residencial do entorno. Para isso, a parte frontal do terreno foi concebida como uma ampla praça de chegada, marcada por uma marquise que recebe e acolhe. Essa estrutura abriga a garagem, facilita as manobras dos carros e pode ser utilizada como um espaço multiuso, tanto no dia a dia quanto em momentos de convivência social.


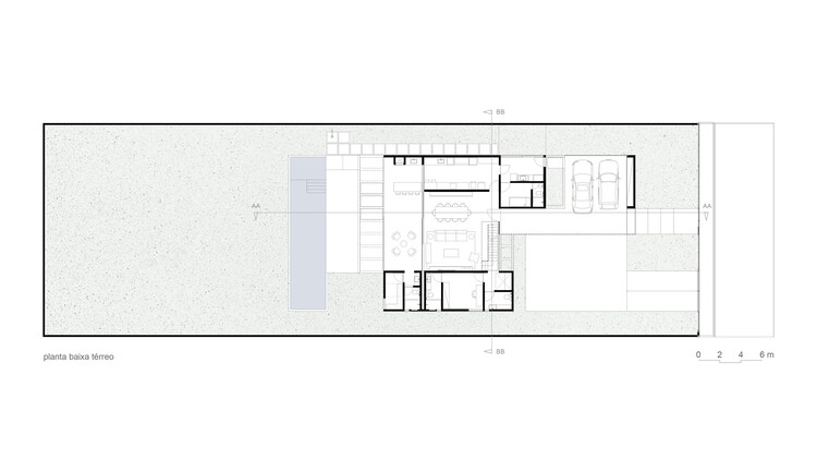
A casa está distribuída em dois pavimentos. No térreo, concentram-se as áreas sociais e de lazer, dispostas no vão que resulta da projeção do pavimento superior. A integração entre o estar e a varanda deriva em ambientes amplos e fluidos, que se abrem para o jardim, a piscina e a área de fogueira, espaços muito utilizados pelos moradores.


No pavimento superior, concentram-se três suítes voltadas para a área verde localizada nos fundos do lote. Os dormitórios são protegidos por um amplo brise de madeira, que assegura privacidade e atua como elemento de controle solar, especialmente diante da incidência do sol poente.

Uma pérgola metálica complementa a composição arquitetônica, proporciona o sombreamento e emoldura a vista da varanda para a área verde.

O volume superior recebeu acabamento em tonalidade terracota, uma referência à cor característica da terra de Brasília. Essa escolha reforça a integração da residência com o contexto local e transmite a sensação de acolhimento desejada pelos moradores.

A materialidade do projeto reforça a linguagem arquitetônica adotada, caracterizada por volumes puros e integração com o entorno. A estrutura em concreto armado possibilita a criação de grandes vãos e ambientes amplos, enquanto os fechamentos em vidro e madeira promovem permeabilidade visual, ventilação cruzada e uma conexão constante com o espaço externo.





























