
-
Arquitetos: Silverline
- Área: 517 m²
- Ano: 2025
-
Fotografias:Ivo Tavares Studio
-
Fabricantes: DL Cozinhas, Melt81Studio, Microcrete

Descrição enviada pela equipe de projeto. Implantada no seio de uma propriedade agrícola em Vila Nova de Gaia, caracterizada por relevos suaves, a Casa do Engenho integra um conjunto edificado do início do século XVIII, composto pela residência principal, áreas de cultivo, eira, poços - um deles o antigo "engenho" - e pequenos edifícios de apoio. Este corpo complementar, originalmente dedicado a acolher encontros e celebrações familiares, apresentava uma organização rígida e compartimentada, que limitava a sua funcionalidade e a vivência quotidiana.

A vivência temporária de três meses na antiga casa da piscina, durante uma intervenção na casa principal, revelou o potencial do espaço. Essa descoberta motivou a transformação do edifício, hoje designada atualmente como "Casa do Engenho".


A proposta assenta numa transformação integral do interior, preservando a integridade estrutural e a expressão arquitetónica exterior. A leitura da fachada foi clarificada através da regularização da métrica e da introdução de novas portadas, garantindo conforto e flexibilidade no controlo da luminosidade. Embora formalmente ligado à casa principal, o edifício assume autonomia e identidade própria, afirmando uma linguagem mais contemporânea e contrastante. A intervenção privilegia a permeabilidade visual, a luz natural — sobretudo proveniente de poente - e uma continuidade espacial que reconfigura o modo de habitar.

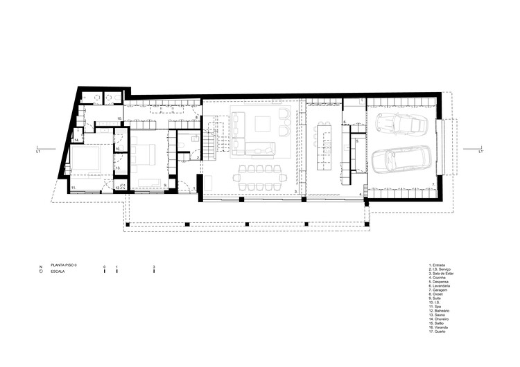
O piso inferior concentra as áreas sociais num espaço contínuo: sala de estar, sala de jantar e cozinha articulam-se num ambiente fluido e uniforme, marcado pela materialidade quente da madeira. Os painéis deslizantes permitem ajustar a relação entre cozinha e sala, assegurando abertura ou privacidade conforme o uso. Este nível integra ainda lavandaria, despensa, instalação sanitária de serviço, garagem e a suíte principal, equipada com closet, instalação sanitária e uma área de spa com acesso direto ao exterior.

O piso superior acolhe duas suítes e um salão amplo, todos com acesso a varandas. A cobertura inclinada incorpora claraboias estrategicamente colocadas para garantir iluminação natural. Prolonga-se para além do perímetro, criando uma área exterior coberta que amplia o uso do espaço ao mesmo tempo que assegura proteção solar.


A escada original foi preservada, destacando-se como um dos elementos centrais e simbólicos do projeto. Os degraus iniciais em pedra ajudam a prolongar o pavimento do hall de entrada e contrastam com os restantes em madeira, que surgem como contraponto leve e contemporâneo, conferindo ritmo e continuidade ao percurso que liga áreas sociais e íntimas da casa.

A materialidade recorre a elementos naturais, capazes de dialogar com a pré-existência, enquanto a espacialidade interior privilegia a continuidade, a fluidez e a relação entre interior e exterior. Após a intervenção, o edifício deixa de ser um espaço complementar para assumir o protagonismo na vivência familiar. A Casa do Engenho renasce com vitalidade, significado e conforto, respeitando a memória do lugar e projetando-a para o futuro. É, acima de tudo, um espaço pensado para acolher a continuidade de uma história familiar, agora reinterpretada através da arquitetura.



















